EasyManua.ls Logo

McQuay M5WMY10LR - Установка Наружного Блока

McQuay M5WMY10LR
120 pages
To Next Page IconTo Next Page
To Next Page IconTo Next Page
To Previous Page IconTo Previous Page
To Previous Page IconTo Previous Page
Loading...
hs
i
l
g
nE
Русский
7-5
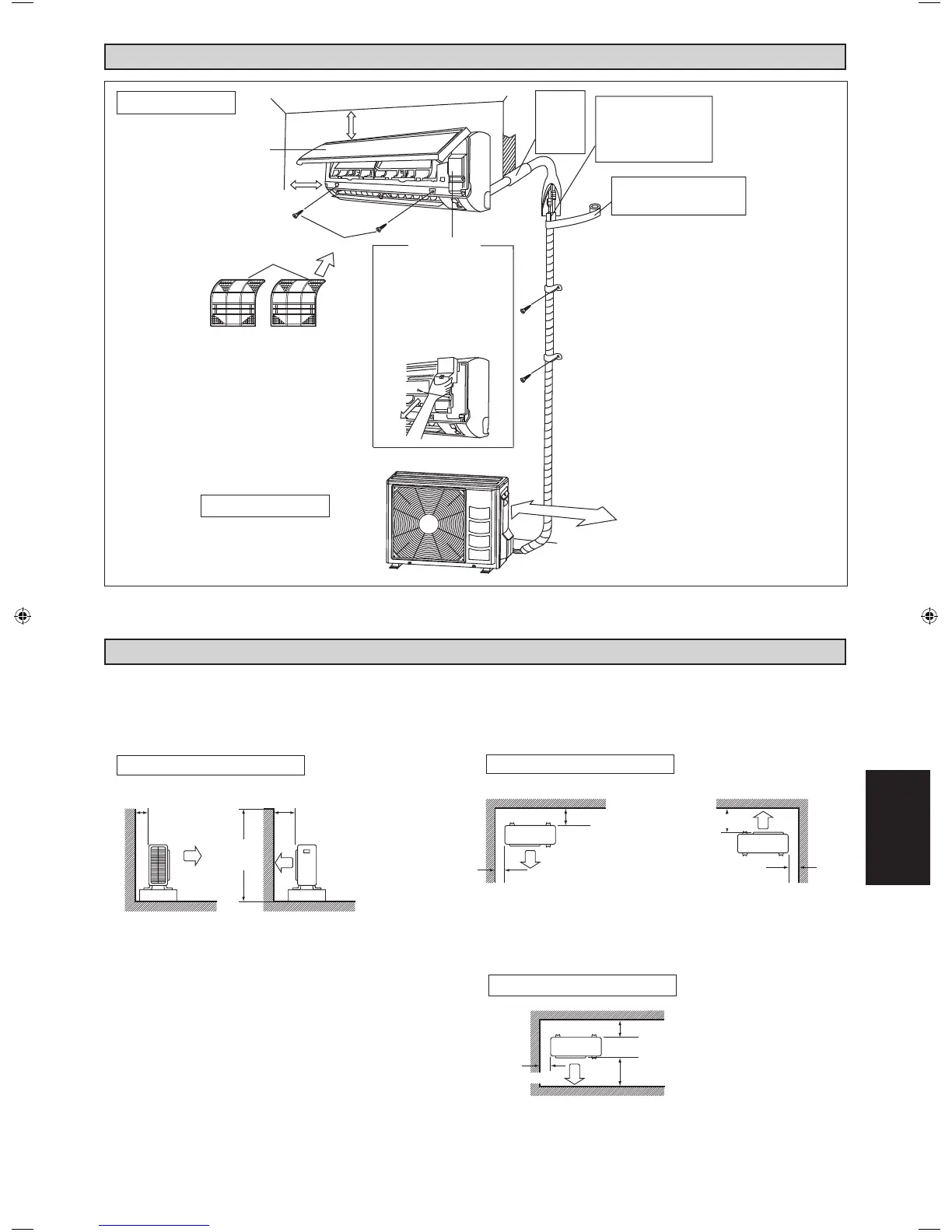
РИСУНОК УСТАНОВКИ
УСТАНОВКА НАРУЖНОГО БЛОКА
Когда на пути впускного или выпускного потока воздуха наружного блока находится стена или другое препятствие,
выполните следующие инструкции по установке.
Для любой из схем установки высота стены на стороне выпуска воздуха не должна превышать 1200мм.
Комнатный блок
не менее 30мм от потолка
Лицeвая панель
не менее 50мм от стен
(с обеих сторон)
Воздушный Фильтр
заделайте
зазор в
месте
отверстия
для трубы
шпатлевкой
Обрежьте трубу тепловой
изоляции до требуемой длины
и обмотйте ее лентой, тледя
за отсутствием зазоров по
линии обреза трубы. обмотайте
изоляционную трубу лентой
наружного покрытия снизу
доверху.
Обмотайте изоляционную трубу
лентой наружного покрытия снизу
доверху.
Сервисная крышка
Открытие сервисной крышки
Сервисная крышка является
крышкой типа открытия/
закрытия.
• Метод открытия
1) Открутите винты сервисной
крышки.
2) Вытяните сервисную
крышку вниз по диагонали в
направлении стрелки.
3) Потяните вниз.
250мм от стены
M4 X 12L
Hapyжный Блок
Одна сторона обращена к стене
Две стороны обращены к стенам
Более 100
Более 100
Более 150
Более 50
Вид сверху
Три стороны обращены к стенам
Более 150
Более 300
Более 50
Вид сверху
блок: мм
Более 50
Более 100
Вид сбоку
Не более
1200
McQuary IM-WMJ-1110(0)_RU.indd 5McQuary IM-WMJ-1110(0)_RU.indd 5 1/12/2011 6:23:04 PM1/12/2011 6:23:04 PM

Table of Contents

Related product manuals