EasyManua.ls Logo

Mec SE Series - Hydraulic Schematics and Units

Mec SE Series
195 pages
Print Icon
To Next Page IconTo Next Page
To Next Page IconTo Next Page
To Previous Page IconTo Previous Page
To Previous Page IconTo Previous Page
Loading...
“SE Series” Service and Parts ManualMarch 2017
Page 3-2
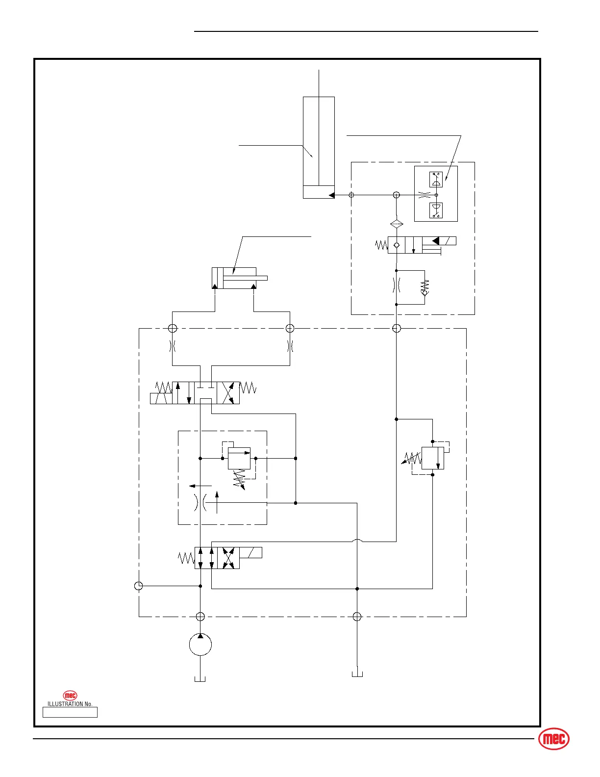
HYDRAULIC SCHEMATIC
H
YDRAULIC
S
CHEMATIC
Steer Cylinder
Platform Overload Sensor
SV1
S1 S2
L
P T
M
RV1
ORF2
ORF1
FRRV1
SV2
L
CV3
SV5
Lift Cylinder
ART_5136
1930SE HYDRAULIC SCHEMATIC

Table of Contents

Other manuals for Mec SE Series

Related product manuals