EasyManua.ls Logo

Metos PROVENO E - Floor Drain Positioning

Metos PROVENO E
72 pages
Print Icon
To Next Page IconTo Next Page
To Next Page IconTo Next Page
To Previous Page IconTo Previous Page
To Previous Page IconTo Previous Page
Loading...
48
|
PROVENO E
Rev. 1.2 (24.08.2016)
Installation
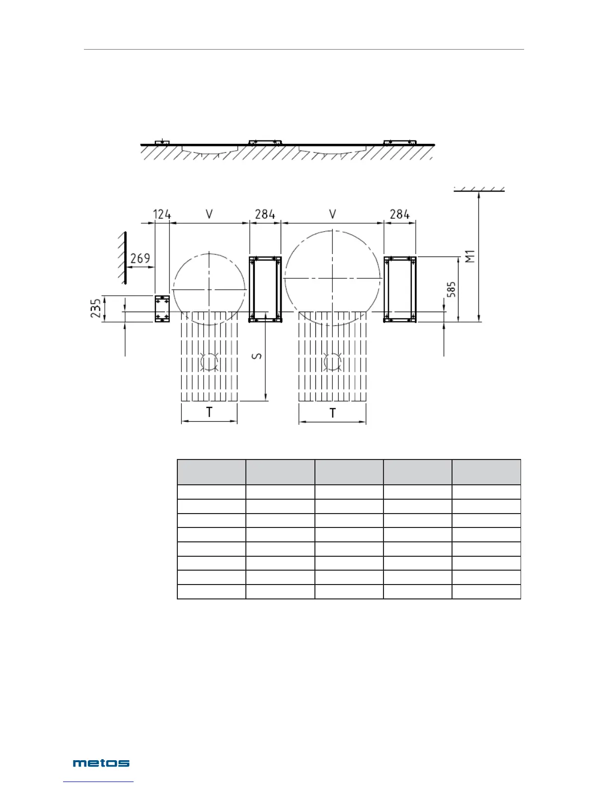
5.2.2. Floor drain positioning
Model M1
(mm)
V
(mm)
S
(mm)
T
(mm)
40E 1047 613 800 400
60E 1172 613 800 400
80E 1227 720 800 500
100E 1227 720 800 500
150E 1162 926 800 600
200E 1277 926 800 600
300E 1312 1126 1000 600
400E 1312 1126 1200 600
150
150

Table of Contents

Related product manuals