EasyManua.ls Logo

Metos VIKING - Water Connection and Quality Requirements

Metos VIKING
64 pages
Print Icon
To Next Page IconTo Next Page
To Next Page IconTo Next Page
To Previous Page IconTo Previous Page
To Previous Page IconTo Previous Page
Loading...
|
45
VIKING 4G E, S
Rev. 1.0 (29.1.2020)
Installation
6.8.1. Water connection and quality requirements
The unit must be connected to the cold and warm water supply and, if fi tted with a twin water con-
nection option (T), also to the soft water supply.
All water supply lines must be fi tted with a one-way valve and a shut-off valve (not included in delivery).
Before connection to the unit all water lines must be thoroughly rinsed from all loose particles.
The water pressure range for optimum performance is 250 - 600 kPa.
The minimum water pressure allowed for proper function of the unit is 250 kPa. If the pressure is
lower, a pressure rise pump must be fi tted by the customer.
The minimum water fl ow rate in the kettles is 5 l/min. To ensure optimal operation of the unit, it is
recommended cold water fl ow rate must be at least 20 l/min.
All water connections are of size Ø15mm (R 1/2”).
The size of particles in the water must not exceed 15 μm
Water conductivity should be below 1000μS/cm. Already when the conductivity is over 500μS/cm, a
water analysis is recommended.
Maximum chloride concentration allowed is 60 mg/l.
Maximum chlorine concentration allowed is 0,2 mg/l.
The pH value of the water should be between 6,5 and 9,5.
The water hardness should be less than 6 ° dH. Water hardness must not exceed 9 ° dH. If the hard-
ness of the water is between 6-9 ° dH, it increases the need for cleaning the steam generator and
shortens the lifespan of heating resistors.
Unit damages caused by chloride, chlorine or pH values exceeding the stated limits are not covered
by manufacturer warranty.
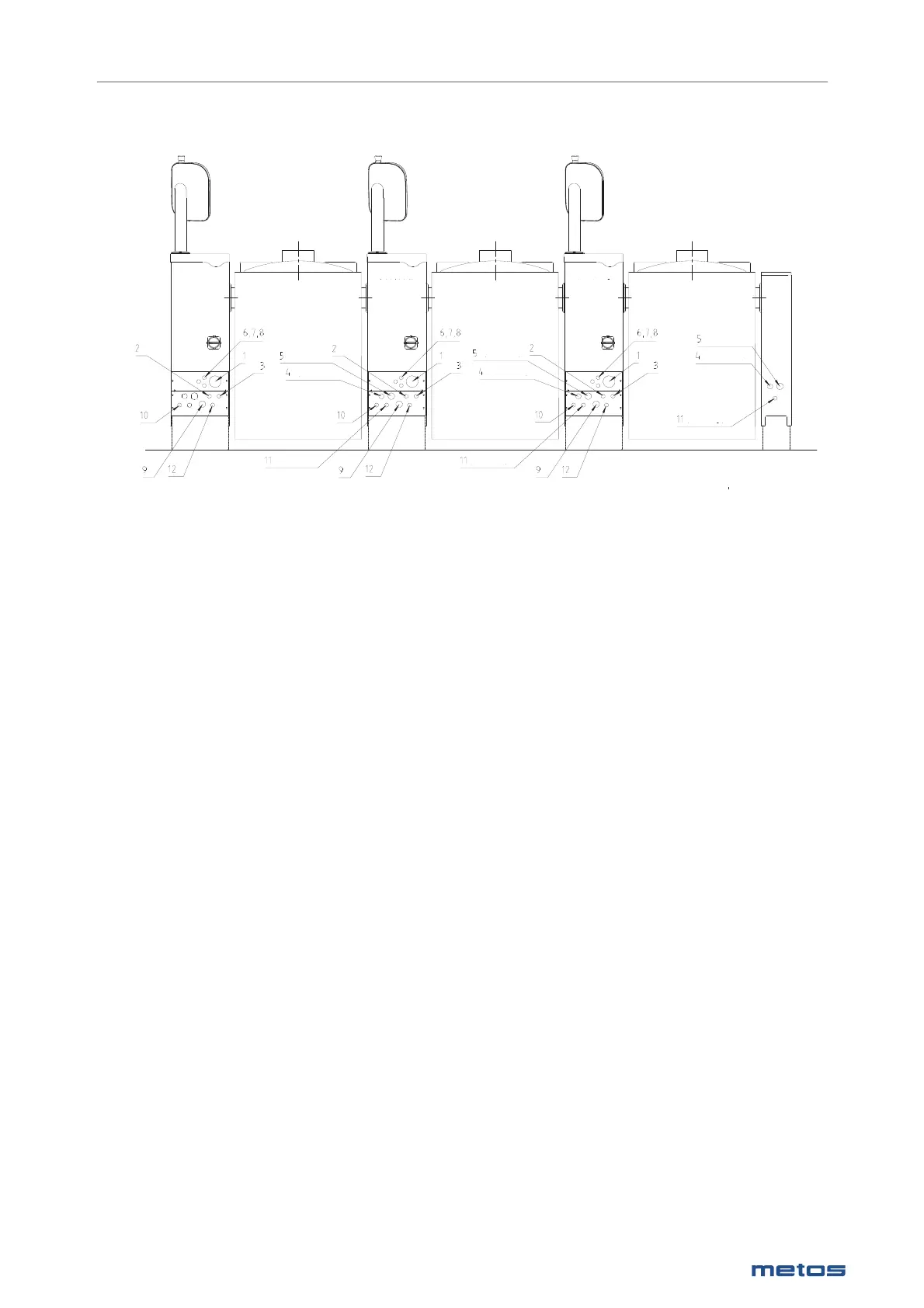
1. Electrical power supply cable, PG21/PG36/PG42 gland
2. Cold water connection R1/2” ( ø15 ). Must be fi tted with a one way valve and shut off valve.
3. Hot water connection R1/2” ( ø15 ). Must be fi tted with a one way valve and shut off valve. (option)
4. Ice bank cooling inlet R3/4”. Max. pressure 3 BAR, fl ow 90l/min. (option)*
5. Ice bank cooling outlet R1”. (option)*
6. Ice bank cooling control cable 4 x 0,75mm (option).*
7. HACCP cabling (option).
8. Power management system control cable (option).
9. Steam inlet R3/4” / R1” / R1 1/4” (option)
10. Condensate outlet R1/2” / R3/4” (option)
11. Compressed air inlet R1/2” max pressure 1,3 bar, minimi fl ow 30 l/min (option)*
12. Twin water inlet R1/2”(option)
* Proveno kettles only
An example of connections in a kettle group
KETTLE 1
KETTLE 1
(KETTLE 1)
(KETTLE 1)
(KETTLE 1)
KETTLE 2
(KETTLE 2)
(KETTLE 2)
(KETTLE 2)
KETTLE 3
(KETTLE 3)
(KETTLE 3)
(KETTLE 3)
KETTLE 3
KETTLE 2

Table of Contents

Related product manuals