EasyManua.ls Logo

Midea LSBLG320/MZ - For Single Head Unit (LSBLG255~630;MZ); Refrigeration System

Midea LSBLG320/MZ
113 pages
Print Icon
To Next Page IconTo Next Page
To Next Page IconTo Next Page
To Previous Page IconTo Previous Page
To Previous Page IconTo Previous Page
Loading...
MCAC-CTSM-2014-03 DX type water-cooled screw chiller (PCB Control)
13
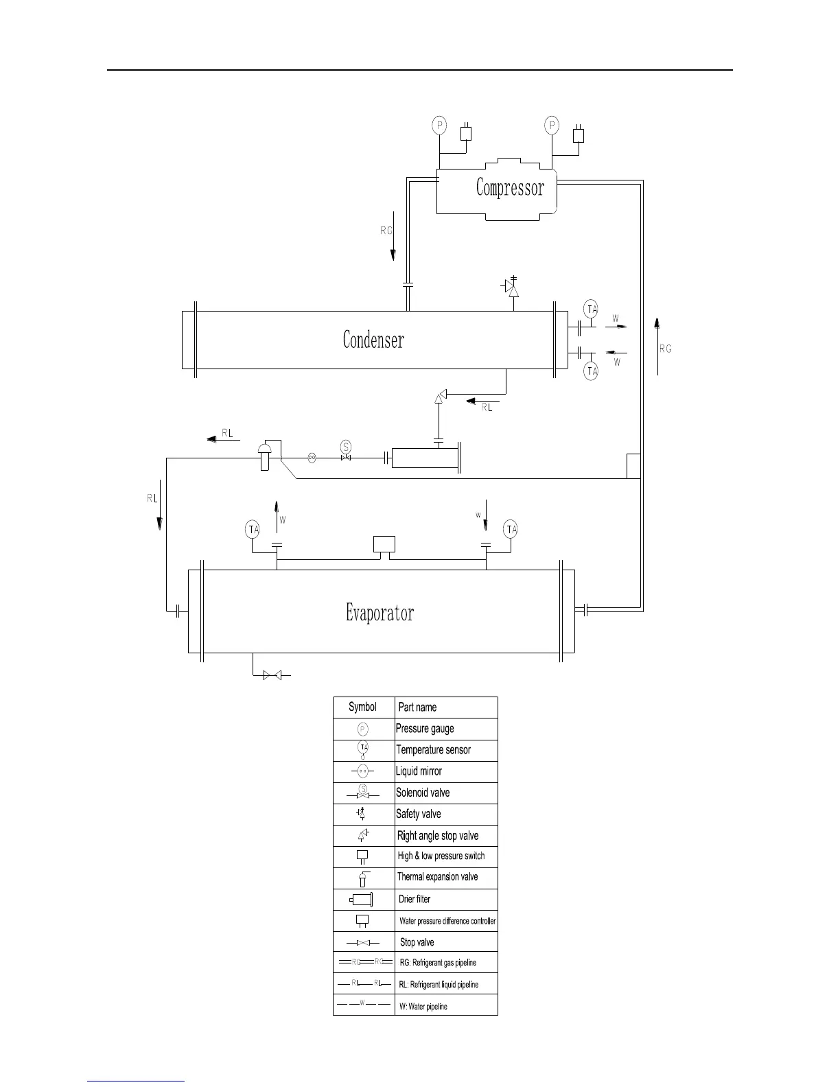
5.Refrigeration system
For single head unit (LSBLG255~630/MZ)

Table of Contents