EasyManua.ls Logo

Mitel MX-ONE - 4.7.2.3 Digital external line with TLU79 as a tie line; 4.8 Through-Connection on Power Failure or Processor Malfunction

Mitel MX-ONE
49 pages
Print Icon
To Next Page IconTo Next Page
To Next Page IconTo Next Page
To Previous Page IconTo Previous Page
To Previous Page IconTo Previous Page
Loading...
21/1531-ASP11301 Uen B3 2016-02-17 40
C
ONNECTION OF EXTERNAL CABLES
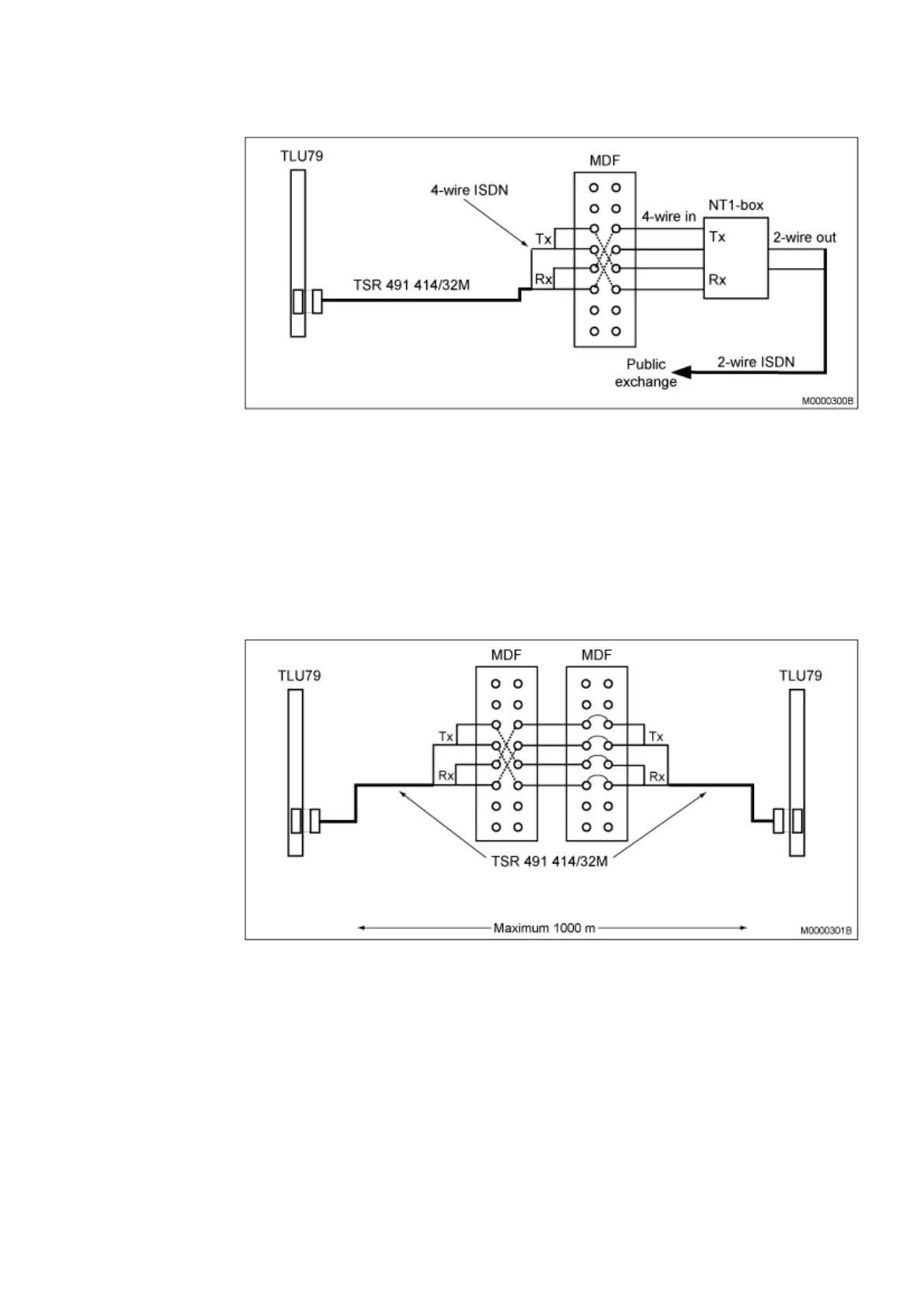
Figure 31: 2-wire ISDN with TLU79 and an NT1-box (8 pairs)
Note: Make sure that each individual’s receive (Rx) and transmit (Tx) are properly
connected between the TLU79 board and the NT1-box. Necessary corrections
between the individuals can preferably be performed in the MDF.
4.7.2.3 Digital external line with TLU79 as a tie line
Color coding for TLU79 with cable TSR491414/xxx see item 3.5.4 ELU26 and TLU79
cable structure on page 34
Figure 32: Connecting TLU79 to TLU79 through MDF (8 pairs)
4.8 THROUGH-CONNECTION ON POWER FAILURE OR
PROCESSOR MALFUNCTION
If the exchange is equipped with an FTU2 board, one to 32 extensions (8 per FTU2
boards) can be through-connected to the public network in the event of power failure
or processor malfunction.

Table of Contents

Other manuals for Mitel MX-ONE

Related product manuals