EasyManua.ls Logo

Modine Manufacturing MPR - Unit Features;Options Location Drawings

Modine Manufacturing MPR
60 pages
Print Icon
To Next Page IconTo Next Page
To Next Page IconTo Next Page
To Previous Page IconTo Previous Page
To Previous Page IconTo Previous Page
Loading...
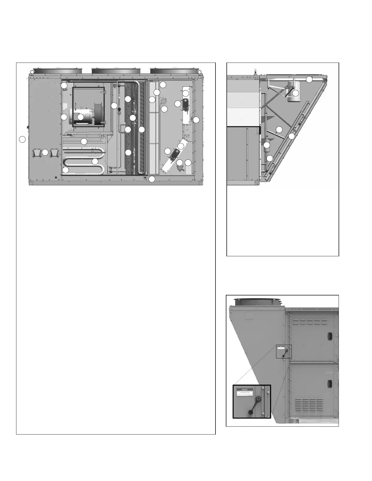
30 MCP15-500.7
1 (O) GFCI convenience outlet (not shown here, refer to Figure 24.1)
2 (S) Blower door switch
3 (S) Airflow proving switch
4 (S) Supply fan motor with direct drive fan
5 (O) Hot gas reheat circuit shut-off valves (one located in controls compartment
for C-Cabinet sized units)
6 (S) Electronic expansion valve
7 (S) Refrigeration circuit sight glass
8 (O) Hot gas reheat coil
9 (S) Distributor and distributor piping (not all distributor tubes shown)
10 (S) High capacity evaporator coil
11 (O) 4" secondary filters, MERV 13 or 16
12 (S) 2" primary filters, MERV 10 (standard), 13, or 15
13 (O) Dirty filter pressure switch (not shown)
14 (S/O) Outside air damper (standard on units with outside air)
15 (S/O) Modulating damper actuator (standard on units with outside air)
16 (S) Mixed air temperature sensor (standard on all units with outside and return
air dampers)
17 (S) Outside air enthalpy sensor
18 (O) Return air damper
19 (O) Modulating damper actuator
20 (O) Return air enthalpy sensor
21 (O) Return air smoke detector
22 (S) Evaporator drain pan drain connection
23 (O) Gas or electric heat module (gas shown)
24 (O) Gas heating high limit control (standard if gas heat)
25 (O) Gas heating power exhauster outlet (standard if gas heat)
26 (O) Gas heat auxiliary electric heat (not pictured)
(S) = standard (O) = optional
UNIT COMPONENT IDENTIFICATION / LOCATION
Figure 30.1 - Blower/Evaporator/Filter/Damper Sections j Figure 30.2 - Condenser Section j
1 (S) Condenser fan housing
2 (S) Condenser fan motors
3 (S) Refrigerant filter/dryer assembly
4 (S) Liquid line pressure transducer
5 (S) PF™ aluminum microchannel coils
6 (S) Schraeder valve pressure test port
(S) = standard (O) = optional
1
1
3
3
5
5
11
12
13
14
25
15
7
8
9
10
4
4
6
6
2
2
17
18
19
20 21
22
23
24
j Pictured is the C-Cabinet sized unit. Component
locations are similarly placed on the B-Cabinet sized
unit. Location of components is typical, but may
change depending on the configuration of the unit.
26
Figure 30.3 - Optional Data Port k
k Pictured is the OPTIONAL weatherproof RJ-11 jack for
connection of the Remote User Interface Module
(optional accessory) to the unit to allow real-time
diagnostics without opening the cabinet or shutting the
unit off.
ALL FIGURES ON THIS PAGE ARE FOR B- AND C-CABINET SIZED UNITS
16

Related product manuals