EasyManua.ls Logo

Munters MCD100E - Electrical Connections

Munters MCD100E
52 pages
Print Icon
To Next Page IconTo Next Page
To Next Page IconTo Next Page
To Previous Page IconTo Previous Page
To Previous Page IconTo Previous Page
Loading...
B
MCD100-155E
MCD100
MCD155
MCD120
MCD140
B
B
30
244
304
30
450
510
140
(2x)
162
(3x)
12
12
M8 (10x)
502
450
26
134
(2x)
12
239
(2x)
291
231
30
M8 (8x)
C
C
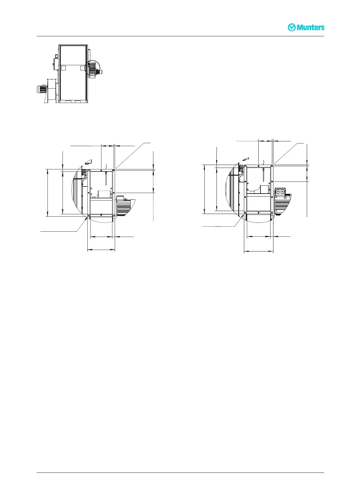
Figure 3.30 Reactivatio n a ir outlet (wet air outlet)
C: Use hexagon head bolts (M8 x 25).
3.9 Electricalconnections
Thedehumidier is designed for operation with a three-phase four wire system. All dehumidiers are
delivered complete w ith all internal wiring installed and congured in accordance with the voltage a nd
frequency specied on the identication plate.
The mains power supply is connected directly to the main power switch in the unit. The supply cable
and main fuses must be dimensioned to suit the unit being installed. For connection details, refer to the
identication plate and w iring diagram, or to section 7.4, Technical data.
NOTE!
Thesupplyvoltagemust notdifferfromspecifiedoperating voltage by morethan+/-10%.
190TEN–106 5–J1408
Installation
23

Table of Contents

Related product manuals