EasyManua.ls Logo

Nibe FIGHTER 1120 - Commissioning and Adjusting; Preparations and System Filling

Nibe FIGHTER 1120
76 pages
Print Icon
To Next Page IconTo Next Page
To Next Page IconTo Next Page
To Previous Page IconTo Previous Page
To Previous Page IconTo Previous Page
Loading...
Docking
FIGHTER 1120
30
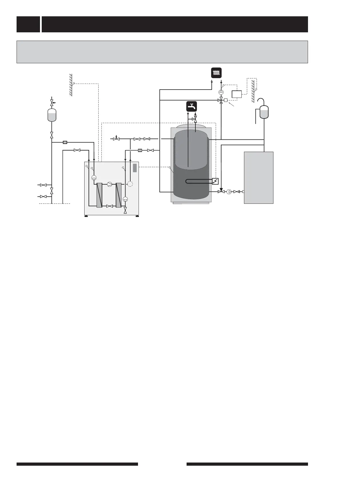
Principle of operation
FIGHTER 1120 charges the hot water heater/accumu-
lator tank (VVB/ACK). When the wood-fired boiler is
used, the heat pump and immersion heater are dis-
connected with a rising temperature on the flow sen-
sor (FG) and start again when the temperature starts
to drop. Self-circulation through the heat pump is pre-
vented by the check valve (BV). The flow temperature
sensor (FG) is placed in the submerged tube on the
accumulator tank. For fixed condensing, 50°C is suit-
able for both min and max levels. (sensor placement
and pump flow observed).
The flow temperature can be controlled from the heat
pump using the accessory ESV 20.
Menu option
This option requires the following selections to be
made in:
Select “Service” in menu 8.1.1.
Menu 9.2.13.1 “Docking type” should be set to “4”.
Menu 9.2.13.2 “Linear 3 steps” should be selected.
Menu 9.2.13.3 “Hot water” should be set to “Off”.
NOTE! These settings must be confirmed by switching
the heat pump off and on.
Menu 2.3 “Flow temp./MIN” the value is set to e. g.
“50” °C.
Menu 2.4 “Flow temp./MAX” the value is set to e. g.
“50” °C.
Menu 9.2.2 “Flow diff HP”, “3” should be selected.
Menu 9.2.3 “Diff HP Add”, “2” should be selected.
Sensor connection
In this connection option the edge board connector for
the flow line sensor (FG) and return sensor (RG)
should be disconnected.
The flow line sensor (FG) should be placed on the
submerged tube in the accumulator tank and connect-
ed to the screw terminals X4:15–16.
The existing return sensor (RG) is disconnected from
the edge board connector and is connected to
X4:13–14.
Option 4 - FIGHTER 1120 docked to another heat source
(fixed condensing)
NK
UG
FG
BK / JK
RC
SF
AV
AV
AV
BV
SÄV
SÄV
AV
AV
AV
AV
SF
Vedpanna
Tillbehör alt
befintlig regler-
utrustning.
VVB / ACK
UG
Accessory or
existing control
equipment
Wood-fired boiler

Table of Contents

Other manuals for Nibe FIGHTER 1120

Related product manuals