EasyManua.ls Logo

Ochsner Air Eagle 717 - Page 39

Ochsner Air Eagle 717
76 pages
Print Icon
To Next Page IconTo Next Page
To Next Page IconTo Next Page
To Previous Page IconTo Previous Page
To Previous Page IconTo Previous Page
Loading...
BA_OCHSNER AIR EAGLE_414_717_V06_EN.docx Page 39 of 76
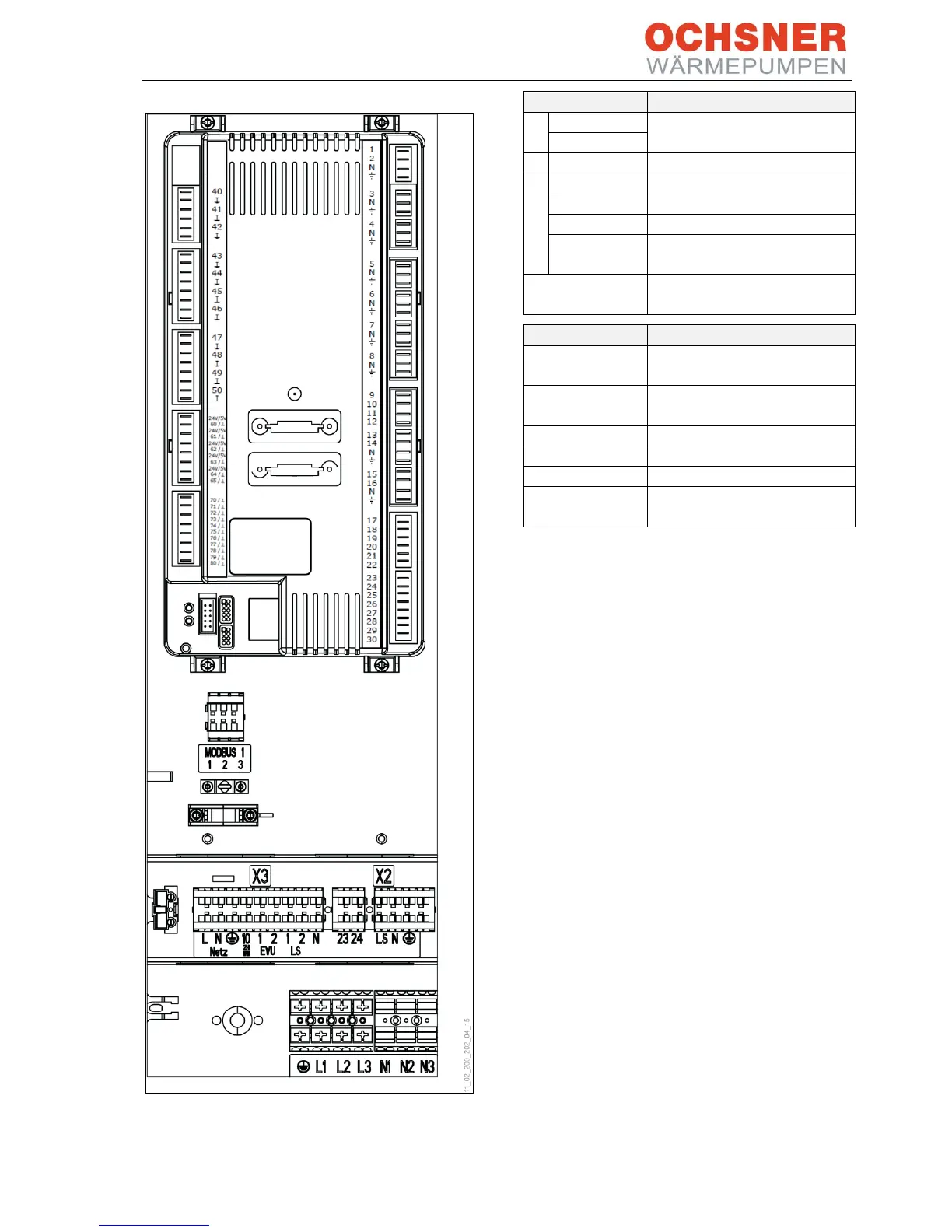
T200 control box:
Terminal
Description
X1
L1/L2/L3
Power supply
electr. booster heater 8.8 kW
N1/N2/N3
X2
23/24/LS/N/PE
Control cable to outdoor unit
X3
L/N/PE
Power supply OTE controller
10
DHW auxiliary heater
1/2 (EVU)
PSU signal contact
1/2
External high limit safety cut-out
(heat sink)
Modbus
B/GND/A
Modbus connection to outdoor
unit
OTE pin
Description
8
Heating circuit pump 2, with
mixer valve (HCP 2)
15/16
Heating circuit mixing valve
(MVH)
41/42
Control elements (eBus)
43
Mixer sensor (TMK)
44
Outdoor temperature sensor (TA)
72
Default target value, building
management system (BMS)
Figure 51: T200 indoor unit connection terminals

Table of Contents

Related product manuals