EasyManua.ls Logo

Omron LD Platform - Wall Bracket Mount

Omron LD Platform
140 pages
Print Icon
To Next Page IconTo Next Page
To Next Page IconTo Next Page
To Previous Page IconTo Previous Page
To Previous Page IconTo Previous Page
Loading...
Chapter 3: Setup
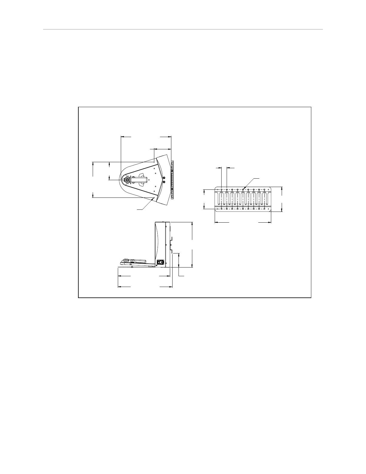
Wall Bracket Mount
1.
Attach the docking station mounting bracket to a wall, with the bottom edge of the
bracket 920 mm (3.8±0.8 inches) above the floor, using user-supplied anchors and
screws. There is leeway, so you can adjust the height a little bit.
Refer to the following figure:
89 [3.5]
114 [4.5]
267 [10.5]
247
[9.7]
123 [4.9]
121 [4.8]
356 [14.0]
315 [12.4]
369 [14.5]
384 [15.1]
Wall Mount
and Floor Mount
Units are mm [inches]
Wall Mount Bracket
98±20
[3.8±0.8]
3x 6 dia. [0.25]
8x 25 [1.0]
18x 6 dia. [0.25]
Figure 3-16. Docking Station, Wall Mount
2.
Screw the two shoulder bolts, each with a washer, into the rear of the docking station.
The shoulder bolts are M5 x 4, stainless steel. Their locations are shown in the fol-
lowing figure. Tighten to 9 m (80 in-lb).
11970-000 Rev H1 LD Platform OEM User's Guide 39

Table of Contents

Related product manuals