EasyManua.ls Logo

Omron V640 - Page 22

Omron V640
141 pages
Print Icon
To Next Page IconTo Next Page
To Next Page IconTo Next Page
To Previous Page IconTo Previous Page
To Previous Page IconTo Previous Page
Loading...
18
SECTION 1
Component Names and Functions
CIDRW System
User’s Manual
SECTION 1
Product Outline
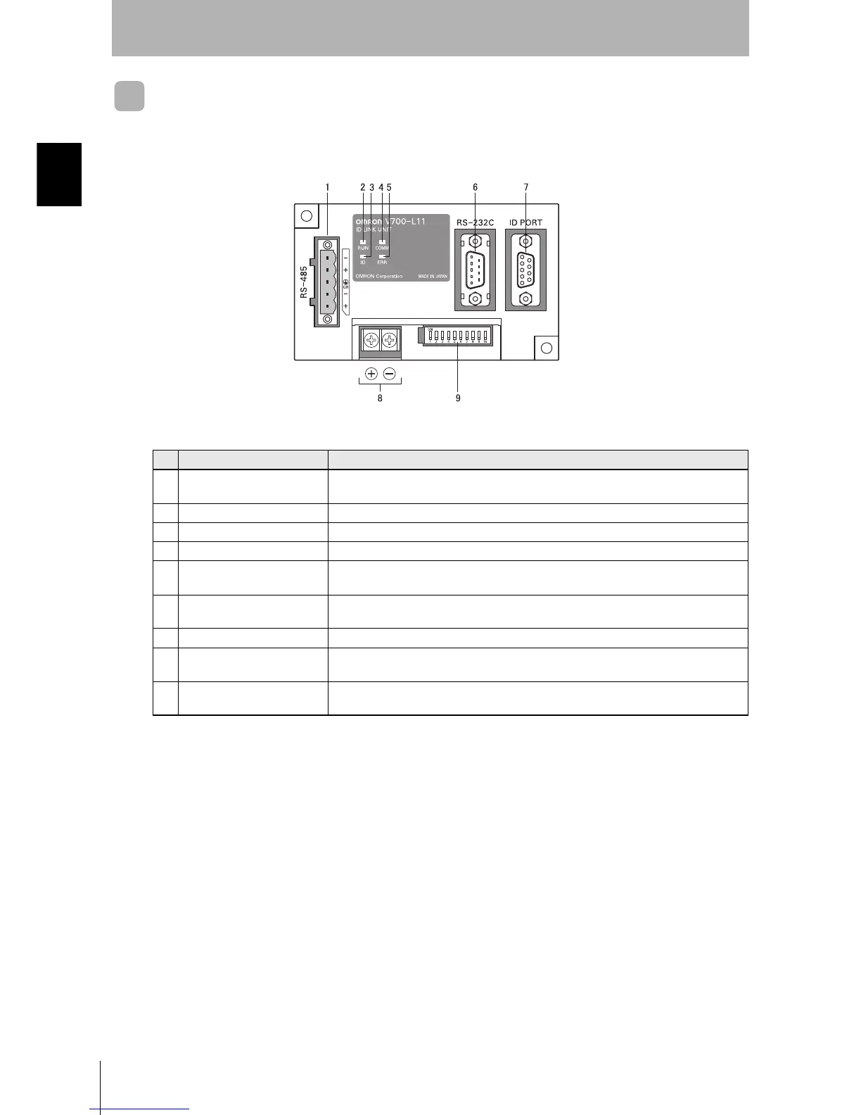
Link Unit V700-L11
No. Name Function
1 Multi-connection port
(RS-485)
This is the port that connects to the Amplifier Units when multiple CIDRW Heads are
connected to a CIDRW Controller. The GR (frame ground) terminal is also at this port.
2 RUN indicator (green) Turns ON while the Link Unit is in normal operation.
3 ID indicator (green) Not used
4 COMM indicator (green) Turns ON during data communications with the host device.
5 ERR indicator (red) Turns ON when an error occurs during data communications with the host device or
head.
6 Host device connection port
(RS-232C)
This is a port for connecting to the CIDRW Controller via an RS-232C interface. A dust
cover is fitted on shipment from the factory. Remove this cover before using the port.
7 ID connection port Not used
8 24 V power supply terminals
(inside the cover)
Connect to the 24 VDC power supply.
9 Setting DIP switches
(inside the cover)
Used to set the equipment number, the communications conditions, and the RS-485 ter-
minal resistance.

Table of Contents

Other manuals for Omron V640

Related product manuals