EasyManua.ls Logo

Optek 156 - Dimensions for Wall Mount Housing B19-42 - Plastic (ABS) - IP66 (Option)

Optek 156
49 pages
Print Icon
To Next Page IconTo Next Page
To Next Page IconTo Next Page
To Previous Page IconTo Previous Page
To Previous Page IconTo Previous Page
Loading...
Technical data
- 14 -
optek-Manual--1004-1022-02--156-US-2017-12-11
www.optek.com
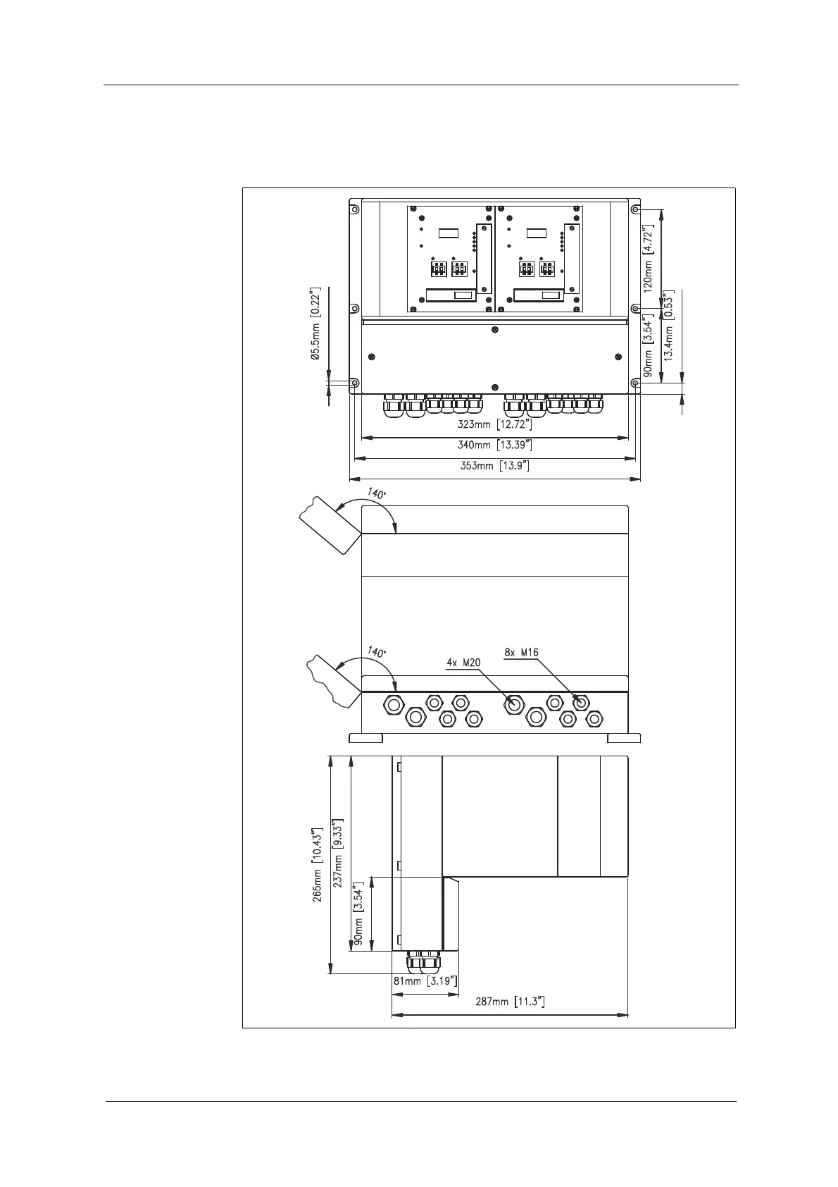
6.2.2 Dimensions for wall mount housing B19-42 - plastic (ABS) - IP66 (option)
Fig. 6 Dimensions with wall mount housing B19-42
ALARM 2ALARM 1ALARM 2ALARM 1
optekoptek
X56
ZERO
X56
ZERO
POWER
LAMP
FAILURE
24.8 24.8
LAMP
VAR
POWER
FAILURE
VAR
8888 888 8
120mm [4.72"]90mm [3.54"]
13.4mm [0.53"]
323mm [12.72"]
340mm [13.39"]
353mm [13.9"]
140°
140°
4x M20
8x M16
Ø5.5mm [0.22"]
90mm [3.54"]
237mm [9.33"]
265mm [10.43"]
81mm [3.19"]
287mm [11.3"]

Table of Contents

Related product manuals