EasyManua.ls Logo

Panasonic DMR-EZ45VEB

Panasonic DMR-EZ45VEB
108 pages
To Next Page IconTo Next Page
To Next Page IconTo Next Page
To Previous Page IconTo Previous Page
To Previous Page IconTo Previous Page
Loading...
10.1.3. CHECKING AND REPLACING OF DVD-RAM DRIVE / DIGITAL P.C.B. MODULE
1. Top Case
· Remove 4 Screws (A) on side and 3 Screws (B) on rear side.
· Remove Top Case.
2. Front Panel
· Remove one Screws (A) on center.
· Unlock 2 Locking Tabs (A), (D) on Front Panel side and 2 Locking Tabs (B), (C) on Front Panel topside.
· Unlock 2 Locking Tabs (E) on Front Panel bottom side and remove Front Panel.
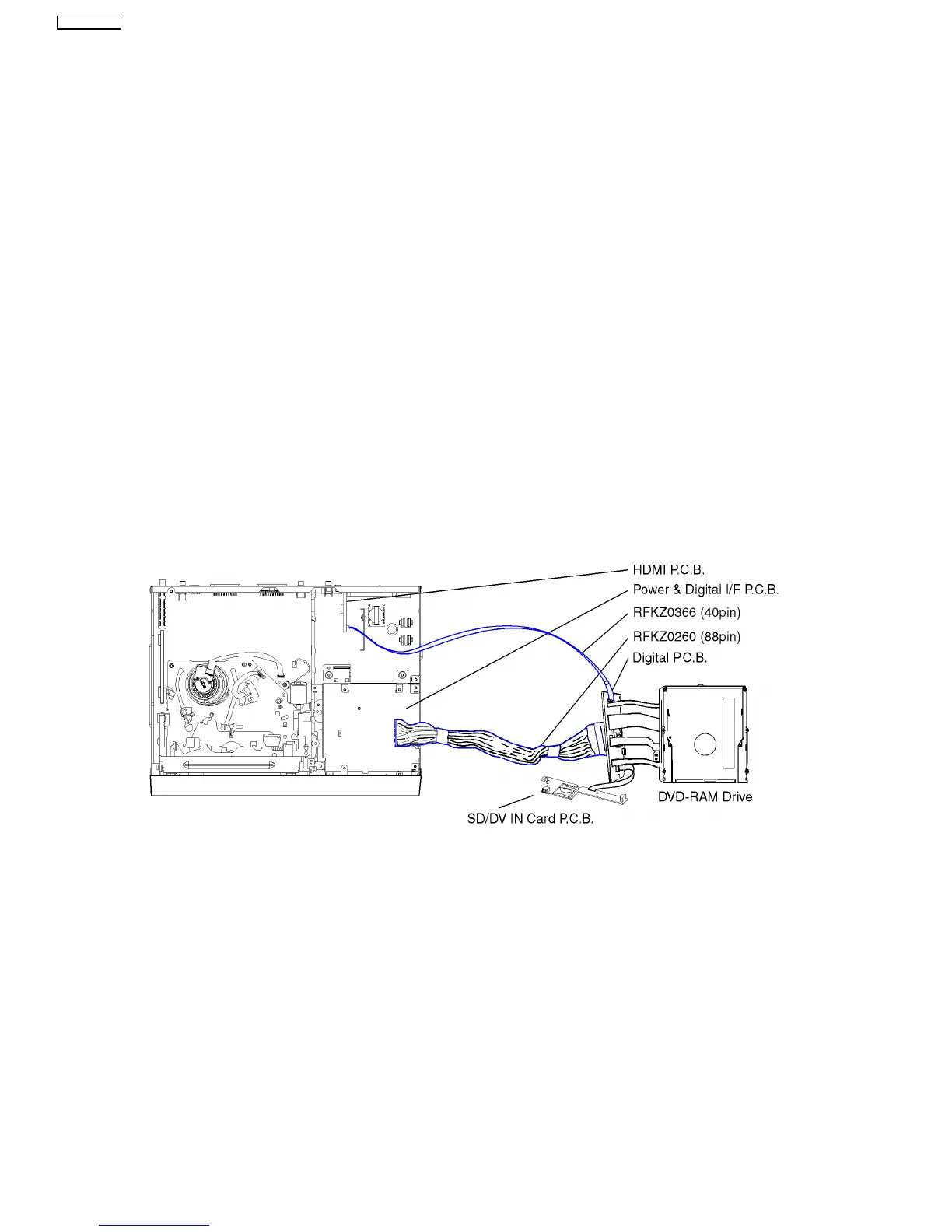
3. DVD-RAM Drive / Digital P.C.B. Module
· Remove the 5 Screws.
· Lift up and hold the DVD-RAM Drive (together with DVD Angle) slightly.
· Remove FF Cable from SD/DV IN Card P.C.B.
· Remove 4 screws from Digital P.C.B. (pay attention while pulling out Digital P.C.B. to disconnect Connector).
· Remove the Digital P.C.B. together with the DVD-RAM Drive and put it beside chassis.
· Remove 2 Screws from SD/DV IN Card P.C.B., take P.C.B. out and attach FF Cable back to Digital P.C.B.
· Attach the Front Panel back to the Chassis.
· Connect Extension Cables:
between Power & Digital I/F P.C.B. and Digital P.C.B. with RFKZ0260 (Red Wire = Pin 1)
between Power & Digital I/F P.C.B. and HDMI P.C.B. with RFKZ0366
CAUTION:
The DVD-RAM Drive and the Digital P.C.B. have to be replaced together as one Module.
If the Module is changed the DVD-RAM Drive has to be re-aligned because the aligment data
for the DVD-RAM Drive is stored in the Digital P.C.B.
38
DMR-EZ45VEB

Table of Contents

Related product manuals