EasyManua.ls Logo

Panasonic MCD Series - 3. System Configuration and Wiring; Overall Wiring (Connector Type)

Panasonic MCD Series
27 pages
Print Icon
To Next Page IconTo Next Page
To Next Page IconTo Next Page
To Previous Page IconTo Previous Page
To Previous Page IconTo Previous Page
Loading...
B9
B8
English
: High voltage
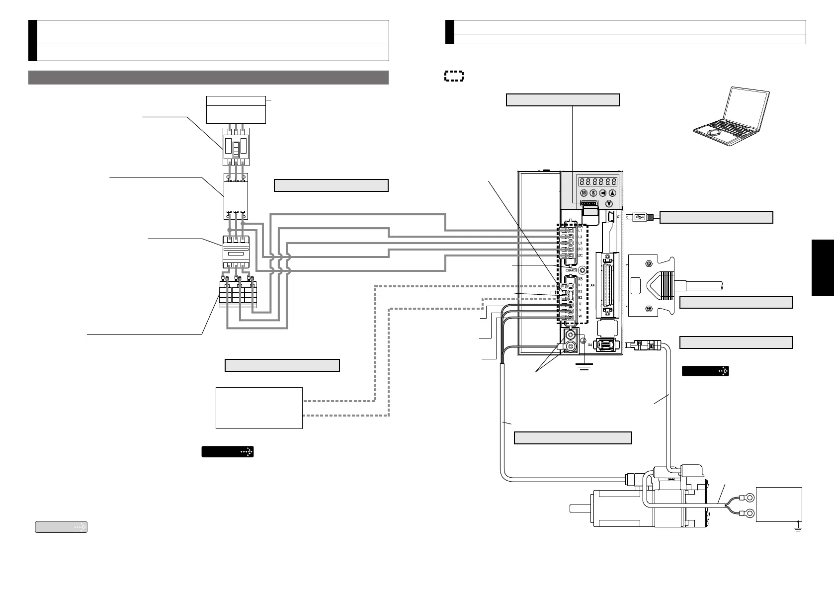
• Wiring of Main Connector (XA)
• Wiring of Motor Connector (XB)
PC (to be supplied by customer)
Setup support software “PANATERM”
Please download from our web site.
L1 (Pin-5)
L2 (Pin-4)
L3 (Pin-3)
L1C (Pin-2)
L2C (Pin-1)
• Connection to input power
Wiring to Connector, XA
• Monitor output
Wiring to Connector, X7
• Connection to host controller
Wiring to Connector, X4
• Connection to encoder
Wiring to Connector, X6
• Connection to external components
Wiring to Connector, XB
Connection to motor driving phase
and ground
Wiring to Connector, XB
Handle lever
Use this for connector
connection. Store this after
connection for other occa-
sions. (Refer to P.B20 for
connection.)
Junction cable for motor
Circuit Breaker (MCCB)
To protect power supply line from
overloading, install a wiring circuit
breaker rated to the capacity of the
power supply.
Noise Filter (NF)
Removes external noise from the
power lines. And reduces an effect
of the noise generated by the servo
driver.
Magnetic Contactor (MC)
Turns on/off the main power of the
servo driver.
Use coil surge suppression units
together with this.
Never start nor stop the servo
motor with this Magnetic
Contactor.
Reactor (L)
Reduces harmonic current of the
main power.
Pin B1 (6-pin), B2 (4-pin), and
B3 (5-pin)
B2 and B3 to be kept shorted for
normal operation. (For C-frame
and D-frame).
• When you connect an external
regenerative resistor, disconnect a
short circuit wire between B2 and
B3, then connect the external
regenerative resistor between B1
and B2, set up Pr0.16 to 1 or 2.
Note that no regenerative resistor is
equipped in Frame A and B type.
B1 (Pin-6)
B2 (Pin-4)
Note
Mains
Short circuit wire
(B2-B3)
*2
Ground
terminal
Junction cable
for brake
DC Power supply for brake
DC24 V
(to be supplied by customer)
U-phase
(red)
V-phase
(white)
W-phase
(black)
Charg lamp
(Red LED)
*1
*1 Do not make displacement, wiring or inspection
while the LED is lit - cause of electric shock.
*2 Short circuit wire is not attached to A and B frame.
Ground
(earth)
Junction cable for encoder
* These colors
are used for
optional cable.
Residual
current device
Apply the voltage designated
on the nameplate from the
power source.
Symmetric current should be
5000 Arms or below.
If the short-circuit current on the
power source exceeds this value,
use a current-limiting device (e.g.
current-limiting fuse, current-limiting
circuit breaker or transformer).
Regenerative resistor (optional)
• When you use an external regenerative
resistor, install an external protective
apparatus, such as thermal fuse without
fail.
• Thermal fuse and thermostat are built in to
the regenerative resistor (Option). If the
thermal fuse is activated, it will not
resume.
• Mount the regenerative resistor on
incombustible material such as metal.
Remarks
• Connection to PC or host controller
Wiring to Connector, X1
X1 to X7 are used for the
secondary circuit. To connect
these terminals to the primary
power supply (particularly,
24 VDC power supply for
brake), insulation is required.
Do not connect these terminals
to the same power supply.
Remarks
3. System Conguration and Wiring
Overall Wiring (Connector type)
3. System Conguration and Wiring
Overall Wiring (Connector type)
Connecting Example of A to D-frame

Related product manuals