EasyManua.ls Logo

Panasonic SA-PT850EE - DVD (Audio)

Panasonic SA-PT850EE
133 pages
Print Icon
To Next Page IconTo Next Page
To Next Page IconTo Next Page
To Previous Page IconTo Previous Page
To Previous Page IconTo Previous Page
Loading...
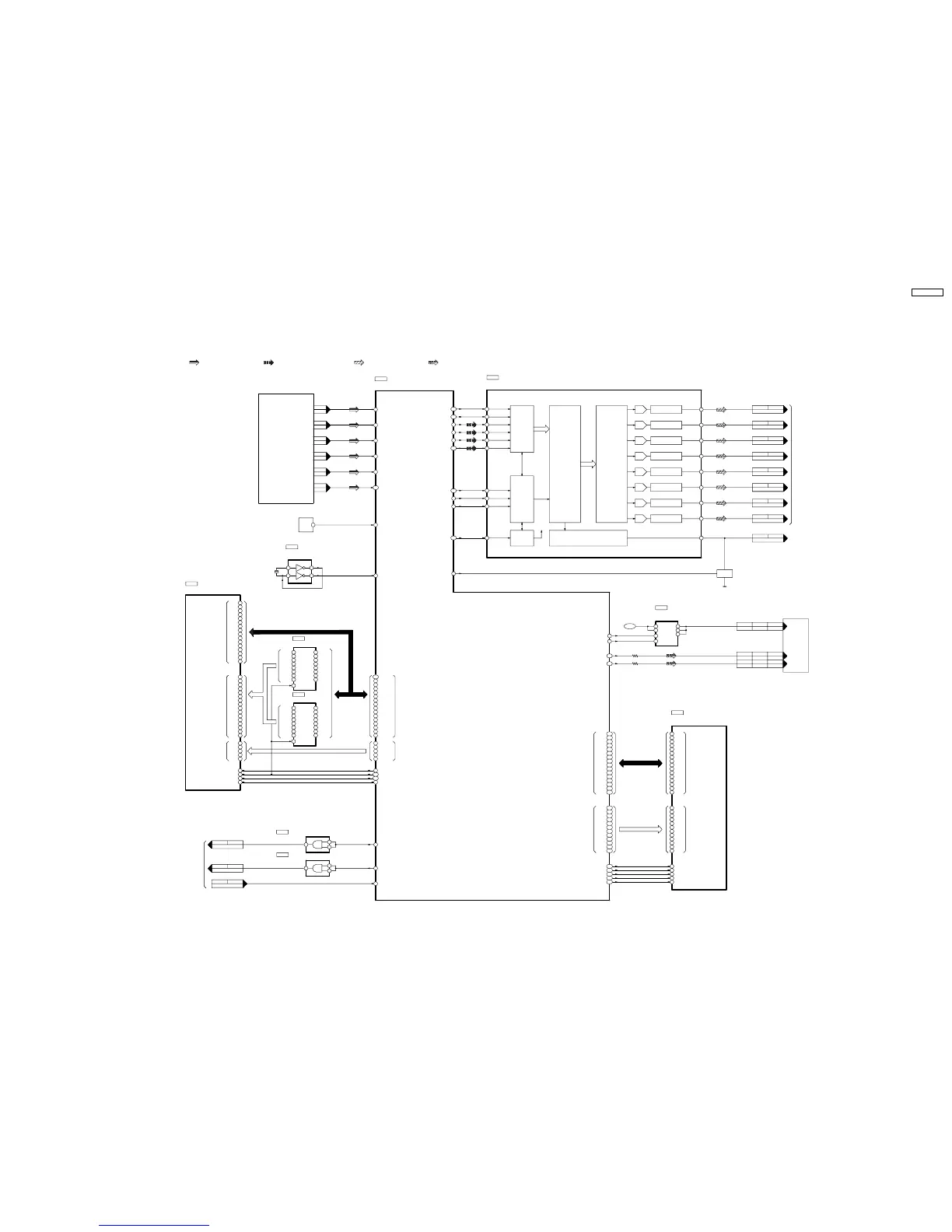
18.3. DVD (Audio)
4
6
USB
RECEPTACLE
D +
D -
3
1
CN9000
VBUS OUT
2
3
FP9001
1
FP9001
2
FP9001
3
5
FP9002
CN9000FP9002
CN9000FP9002
4
IC9005
5
4
3
2
OC
EN
IN
IN
OUT
OUT
6
7
OUT
8
C0DBZYE00002
USB VBUS
USB OVER
D+5V
146
ROUT
144
LOUT
60
65
P13
DRV2
REGULATOR
OPTICAL PIC-UP UNIT
ADDRESS
MEMORY
DATA
MEMORY
IC8051
64M SDRAM
ADDRESS
MEMORY
DATA
MEMORY
CLK
NWE
NCAS
NRAS
NCS
A11
A10
A9
A8
A7
A6
A5
A4
A3
A2
A1
A0
DQ15
DQ14
DQ13
DQ12
DQ11
DQ10
DQ9
DQ8
DQ7
DQ6
DQ5
DQ4
DQ3
DQ2
DQ1
DQ0
38
16
17
18
19
35
22
34
33
32
31
30
29
26
25
24
23
53
51
50
48
47
45
44
42
13
11
10
8
7
5
4
2
MCK
NWE
NCAS
NRAS
NCSM
MA11
(DQM3)
MA10
MA9
MA8
MA7
MA6
MA5
MA4
MA3
MA2
MA1
MA0
MDQ15
MDQ14
MDQ13
MDQ12
MDQ11
MDQ10
MDQ9
MDQ8
MDQ7
MDQ6
MDQ5
MDQ4
MDQ3
MDQ2
MDQ1
MDQ0
IC8001
DV5.0 LSI
RFINP
VN1RF
VN2RF
VN3RF
VN4RF
RFINN
P6
P7
P8
53
55
SYSTEM
CONTROL
TO/FROM
CPU CLOCK
CPU STATUS
CPU CMD
FP8101
2
CN2001
1
3
FP8101
CN2001
100
14
FP8531
RFP
RFN
13
FP8531
160
162
164
168
170
172
176
178
177
175
171
169
201
203
207
209
208
206
202
200
198
199
192
190
189
188
194
181
185
167
163
161
159
TD(DVD)
19
TC(DVD)
18
20
TB(DVD)
TA(DVD)
21
95
96
97
98
99
1
2
4
54
FP8101
CN2001
62
151
63
64
150
149
58
215
148
57
71
FP8101
CN2001
39
FP8101
CN2001
37
FP8101
CN2001
35
FP8101
CN2001
33
FP8101
CN2001
31
FP8101
CN2001
29
FP8101
CN2001
27
FP8101
CN2001
25
23
FP8101
CN2001
A MUTE
QR8420
MUTING
OUTPUT AMP AND
LOW-PASS FILTER
OUTPUT AMP AND
AND GATE
AND GATE
IC8695
C0JBAA000502
IC8691
C0JBAA000502
6
13
12
11
7
8
SRCK
LRCK
DRV3
DRV4
DRV5
ADOUT
DATA1
DATA4
DATA3
DATA2
LRCK
BCK
4
3
2
DACCK
P11
STB DAC
P10
MD
5
FG
SCK
MC
MS
27
28
15
16
19
20
21
22
26
DVD MIX L
DVD MIX R
DVD FL
DVD FR
DVD SL
DVD SR
DVD CNT
SUBW
ZFLAG
MN2DS0018MP
IC8421
AUDIO DAC
C0FBBK000050
I/F
INPUT
SERIAL
CONTROLLER
FUNCTION
WITH
DIGITAL FILTER
OVERSAMPLING
4X/8X
MODULATOR
DELTA-SIGMA
MULTI-LEVEL
ENHANCED
LOW-PASS FILTER
OUTPUT AMP AND
DAC
LOW-PASS FILTER
OUTPUT AMP AND
DAC
LOW-PASS FILTER
OUTPUT AMP AND
DAC
LOW-PASS FILTER
OUTPUT AMP AND
DAC
LOW-PASS FILTER
OUTPUT AMP AND
DAC
V OUT5
V OUT4
V OUT3
V OUT2
V OUT1
LOW-PASS FILTER
DAC
OUTPUT AMP AND
DAC
LOW-PASS FILTER
DAC
ZERO2
V OUT8
V OUT7
V OUT6
MANAGER
CLOCK
SYSTEM
ZERO DETECT
CLOCK
SYSTEM
I/F
CONTROL
FUNCTION
TO AUDIO
TO
SYSTEM CONTROL
C3ABPG000145
FP8531
FP8531
FP8531
FP8531
1
2
4
FP8101
CN2001
SA-PT850EE
DVD (AUDIO) BLOCK DIAGRAM
P5
50
IC9003
X9004
INVERTER GATE
C0JBAB000908
60
65
82
3
4
5
7
6
IC8651
32M FLASH MEMORY
ADDRESS
ADDRESS
DATA
ADDRESS
ADDRESS / DATA
NRST
NEXOE
NEXCE
NEXWE
EXADR20
EXADR19
EXADR18
EXADR17
EXADR16
EXADT15
EXADT14
EXADT13
EXADT12
EXADT11
EXADT10
EXADT9
EXADT8
EXADT7
EXADT6
EXADT5
EXADT4
EXADT3
EXADT2
EXADT1
EXADT0
XRST
12
28
XOE
XCE
26
11
XWE
A20
10
9
A19
A18
16
17
A17
A16
48
1
A15
A14
2
3
A13
A12
4
5
A11
A10
6
7
A9
A8
8
18A7
A6 19
20A5
A4 21
22A3
A2 23
24A1
A0 25
45
DQ15
DQ14
43
41
DQ13
DQ12
39
36
DQ11
DQ10
34
32
DQ9
DQ8
30
DQ7
44
DQ6
42
DQ5
40
38
DQ4
DQ3
35
33
DQ2
31
DQ1
DQ0
29
212
42
41
40
39
38
37
36
29
28
27
26
25
24
23
22
21
35
34
30
45
31
213
214
70
IC9002
LATCH
LE
11
D8
9
D7
D6
8
7
D5
D4
6
5
D3
D2
4
3
D1
EXADT15
EXADT14
EXADT13
EXADT12
EXADT11
EXADT10
EXADT9
EXADT8
EXADT7
EXADT6
EXADT5
EXADT4
EXADT3
EXADT2
EXADT1
EXADT0
2
12
13
14
15
16
17
18
19
Q8
Q7
Q6
Q5
Q4
Q3
Q2
Q1
IC9001
LATCH
LE
11
D8
9
D7
D6
8
7
D5
D4
6
5
D3
D2
4
3
D1
EXADT7
EXADT6
EXADT5
EXADT4
EXADT3
EXADT2
EXADT1
EXADT0
EXADT7
EXADT6
EXADT5
EXADT4
EXADT3
EXADT2
EXADT1
EXADT0
2
12
13
14
15
16
17
18
19
Q8
Q7
Q6
Q5
Q4
Q3
Q2
Q1
C0JBAZ001251
C0JBAZ001251
RFKWMHB0E321
3
1
3
OPTICAL IN
JK8001
EXTRG1
75
IECINPUT
: DVD
: MAIN SIGNAL LINE
AUDIO SIGNAL LINE
: USB SIGNAL LINE
: DVD RF SIGNAL LINE
SA-PT850EE
75

Table of Contents

Related product manuals