EasyManua.ls Logo

Paradox Magellan MG5050

Paradox Magellan MG5050
76 pages
To Next Page IconTo Next Page
To Next Page IconTo Next Page
To Previous Page IconTo Previous Page
To Previous Page IconTo Previous Page
Loading...
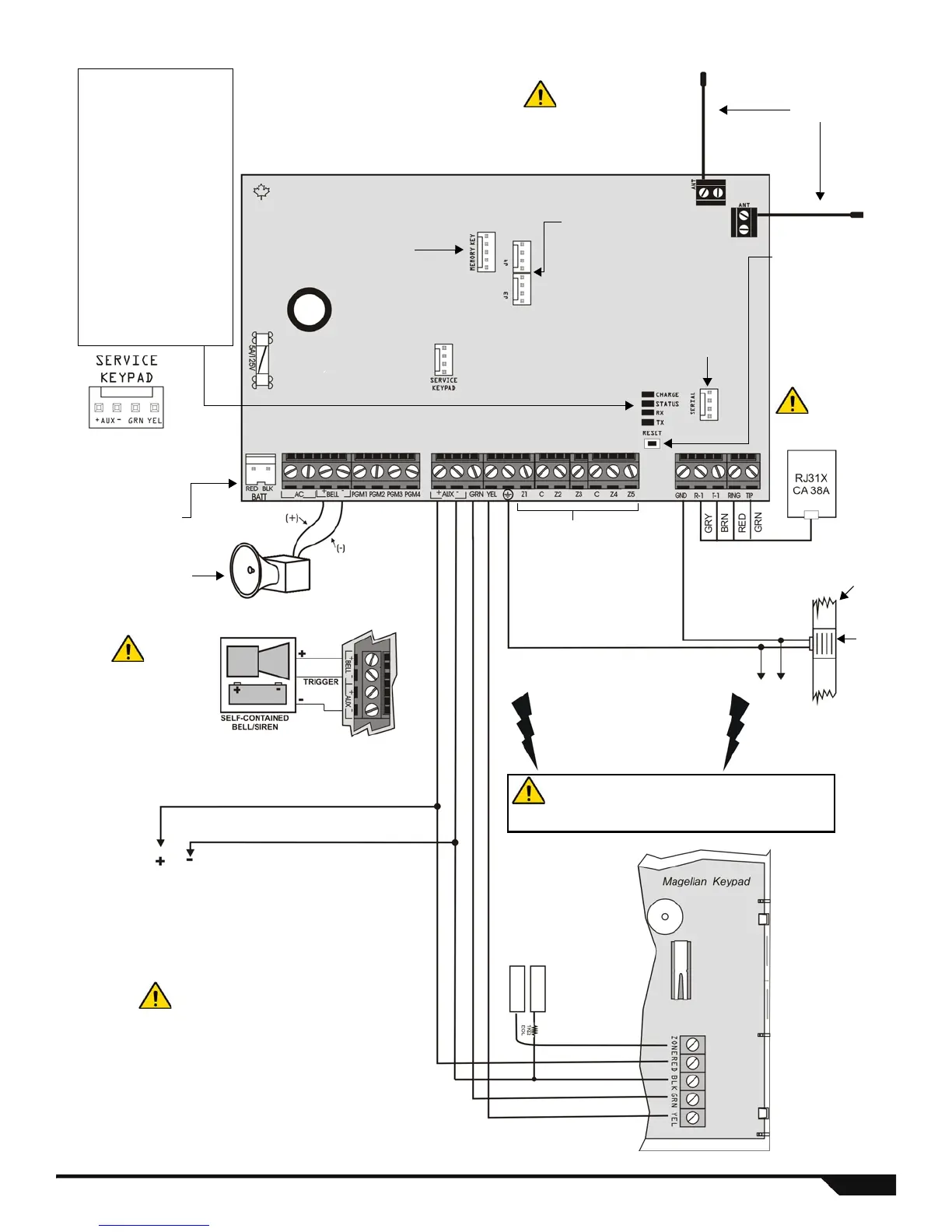
Magellan / Spectra SP 2
MG5050 PCB Layout
Used for In-Field Firmware upgrade
through a 307USB Direct Connect
Interface. See Connecting to
WinLoad on page 62 for details.
Antennas
Do not cut, bend or
alter the antennas and
ensure that electrical
wires do not cross
over the antennae, as
this may affect signal
reception.
Four pin connector can
be used for quick
installation of a keypad.
Refer to AC Power
& Backup Battery
Connections on
page 61.
Paradox Memory Key
(PMC-4, PMC-5)
LEDs
Charge LED:
Charging and battery test
LED
Status LED:
Flash once every second =
Normal
Flashes ON 1 second and
OFF 1 second = Any trou-
ble
Always ON = Panel is
using phone line
Fast flash 6 seconds after
power up = Installer lock
enabled
"RX" & “TX” LED:
Flashes quickly when
receiving or transmitting RF
signals from wireless
devices.
To metallic
enclosure
Ground
clamp
AWG#14 single
conductor solid
copper wire
Cold water
pipe
grounding
To provide maximum lightning
protection we strongly recommend
having separate earth connections
for the dialer and zone ground
terminals.
The "
BELL" output will
shutdown if the current
exceeds 3A.
Refer to Single Zone
Inputs on page 59
Max. amount of keypads = 15 keypads
Max. aux. current = 700 mA
Max. distance of keypad from panel = 76m (250 feet)
Max. total run of wire = 230m (750 feet)
Disconnect telephone
line before servicing.
AUX Power
Refer to transformer requirements on page 61 for Aux.
Power Output. To connect additional wiring to auxiliary
power, use the red (+) and black (-) keypad connectors.
Auxiliary power will shut down if current exceeds 1.1A. If the
auxiliary output is overloaded and is shut down, you must
disconnect all loads from the output for at least 10 seconds
before reconnecting any load back to the auxiliary output.
This equipment must be installed and
maintained by qualified service personnel only.
For UL and C-UL warnings, refer to the UL and
C-UL Warnings section at the back of the
Reference & Installation Manual.
The sum of the
current drawn
from the BELL and AUX
must be limited to 1.3A
(40VA transformer
strongly recommended).
Exceeding this limit will
overload the panel power
supply and lead to
complete system
shutdown.
Connection for Self-Contained Bell/Siren
For the keypad’s zone
configurations, refer to
the Installer Quick
Menu. If EOL is
enabled: see section
[706] option [2]. Also
refer to Keypad Zone
Connections on
page 59.
Press and hold the
RESET button for five
seconds. The STATUS
LED will start flashing.
Within 2 seconds of
this flashing, press the
reset switch again. The
panel will reset to
default and restart.
* If EOL is enabled: see section
[706] option [2]. For the
keypad’s zone configurations,
refer to Installer Quick Menu on
page 65. Also refer to keypad
zone connections on page 59.
*
Solid-state PGM
(+/- trigger on
PGM4 only.
J3 and J4 used with:
VDMP3 plug-in voice module for
voice reporting
PCS100 GSM communicator
module

Related product manuals