EasyManua.ls Logo

Parker 514C-04 - Installation Procedure; Installation Precautions & Mechanical

Parker 514C-04
43 pages
Print Icon
To Next Page IconTo Next Page
To Next Page IconTo Next Page
To Previous Page IconTo Previous Page
To Previous Page IconTo Previous Page
Loading...
Setting up & Commissioning 3-1
514C Product Manual
Chapter 3 Installation Procedure
INSTALLATION PRECAUTIONS
Before connecting AC supplies to this equipment:
1) Ensure good airflow over the heatsink. Maintain clearance of 75mm above and below
controller. For safety maintain a clearance of 20mm at the sides of the controller.
2) Operating temperature range does not exceed 0 to +40
o
C.
3) Controller is used in a Pollution Degree 2 environment.
4) Avoid vibration.
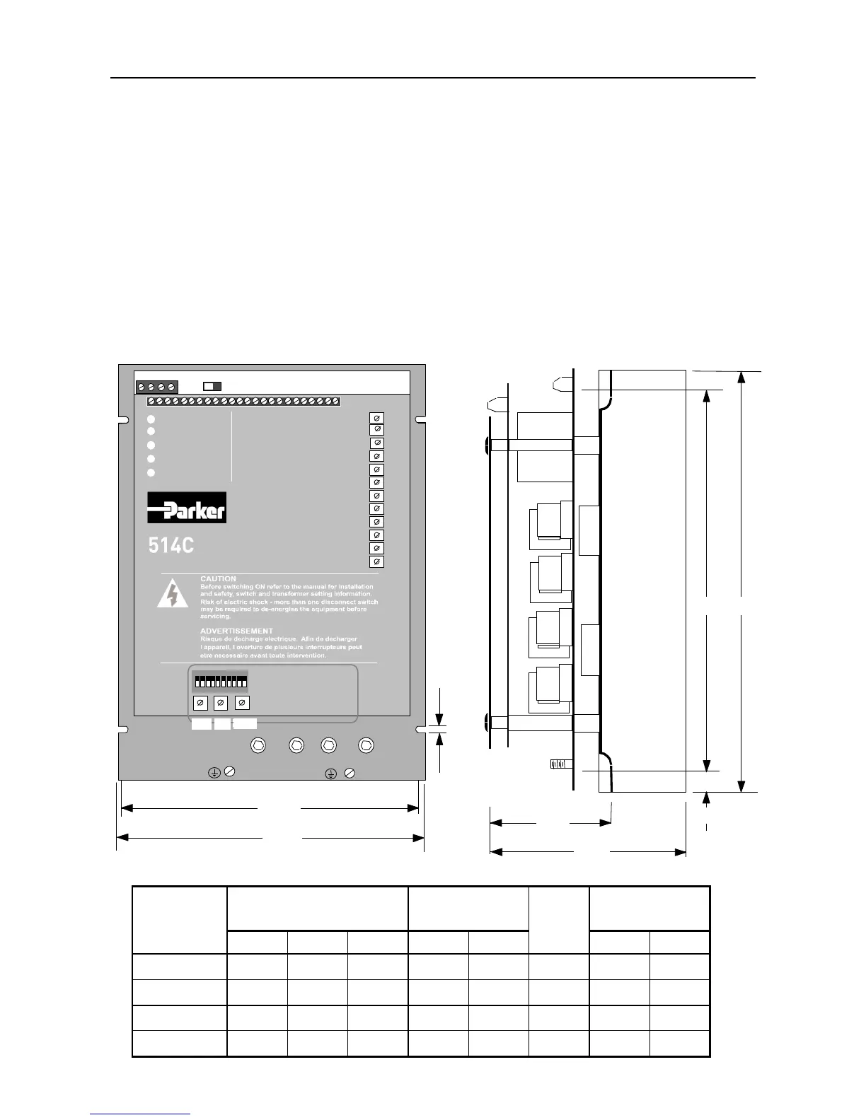
MECHANICAL INSTALLATION
D A
F
C
(measurement for 514C-04 and 08)
C
(measurement for 514C-16 and 32)
G
1
FL1 FL2 F- F+
L2/ N L1 A+ A-
E
B
RAMP UP
RAMP DOWN
SPEED PROPORTIONAL
SPEED INTEGRAL
CURRENT LIMIT
CURRENT PROPORTIONAL
CURRENT INTEGRAL
IR COMPENSATION
MAX SPEED CALIBRATION
ZERO SPEED ADJUST
ZERO SPEED THRESHOLD
L1 POWER ON
L2 STALL TRIP
L3 OVERCURRENT
L4 PLL LOCK
L5 CURRENT LIMIT
P1
P2
P3
P4
P5
P6
P7
P8
P9
P10
P11
P12
SW2
SW3 SW4
ON
1 2 3 4 5 6 7 8 9 10
SW1
DIAGNOSTIC SOCKET
Tenths Unit Tens
PRODUCT
OVERALL DIMENSIONS
FIXING
CENTRES
SIZE
SLOT DETAIL
A
B
C
D
E
F
G
514C-04
240mm
160mm
90mm
210mm
148mm
M6
15mm
7mm
514C-08
240mm
160mm
90mm
210mm
148mm
M6
15mm
7mm
514C-16
240mm
160mm
130mm
210mm
148mm
M6
15mm
7mm
514C-32
240mm
160mm
130mm
210mm
148mm
M6
15mm
7mm
This manual was downloaded on www.sdsdrives.com
+44 (0)117 938 1800 - info@sdsdrives.com

Related product manuals