EasyManua.ls Logo

Prins VSI LPG - Electrical Connections CNG Prins Timing Optimizer (PTO); Diagram CNG PTO Wiring Prins Turbo; MAP Sensor

Prins VSI LPG
77 pages
Print Icon
To Next Page IconTo Next Page
To Next Page IconTo Next Page
To Previous Page IconTo Previous Page
To Previous Page IconTo Previous Page
Loading...
Copyright © Prins Autogassystemen B.V. 2013 Page 33
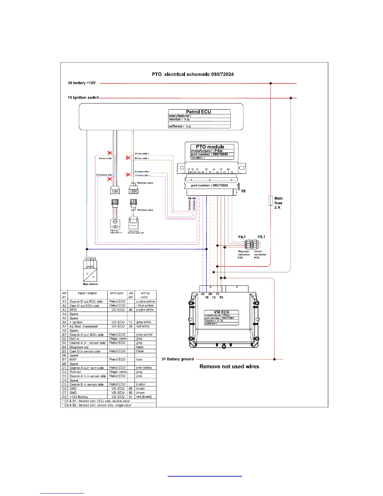
Electrical connections CNG Prins Timing Optimizer (PTO)
Connect the PTO module according the shown diagram.
Check if the latest software is downloaded in the PTO!
Diagram CNG PTO wiring

Table of Contents

Related product manuals