EasyManua.ls Logo

Printronix SL4M - Page 221

Printronix SL4M
308 pages
Print Icon
To Next Page IconTo Next Page
To Next Page IconTo Next Page
To Previous Page IconTo Previous Page
To Previous Page IconTo Previous Page
Loading...
Media
221
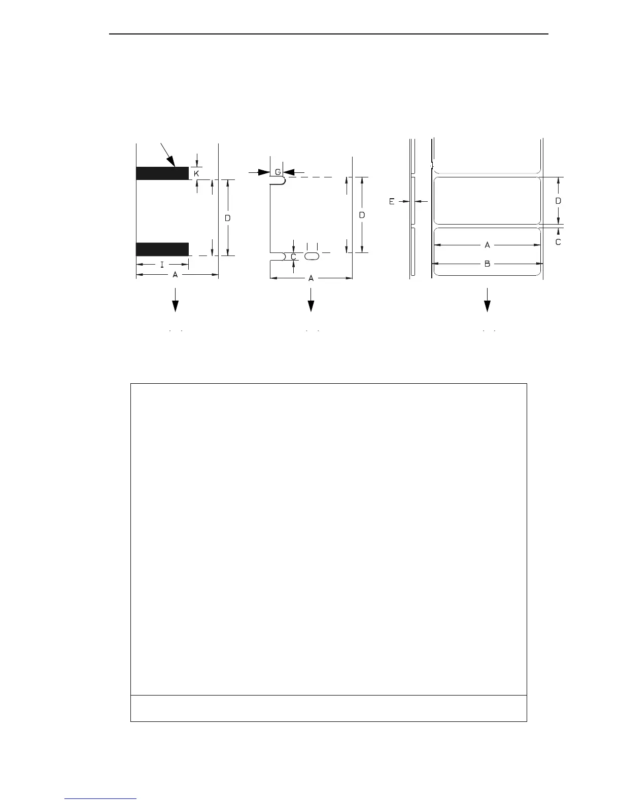
Figure 5. Media Dimensions
I. Tag Specification
(Mark Sensing)
II. Tag Specification
(Gap Sensing)
III. Label Specification
(Gap Sensing)
Direction of Media Motion
Black Mark (on underside)
Direction of Media Motion
Direction of Media Motion
Recommended
Cross Perf
Location
Recommended
Cross Perf
Location
G
Table 18. Media Specifications
SL4M/T4M
A Label Width Range 0.87 to 5.0 inches
22 to 128 mm
B Liner Width Range 1.0 to 5.15 inches
25 to 131 mm
C Min. Gap/Hole/Notch Height 0.10 in.
2.54 mm
D Media Length Range
Tear-Off Strip Mode 0.25 in. (6 mm) to 99 in. (2515 mm)
Peel-Off Mode 1 in. (25.4 mm) to 39 in. (991 mm)
Cut Mode 1 in. (25.4 mm) to 99 in. (2515 mm)
Rewind Mode 0.5 in. (13 mm) to 99 in. (2515 mm)
Continuous Mode 0.25 in. (6 mm) to 99 in. (2515 mm)
E Media Thickness Range 0.0023 to 0.010 in.
0.06 to 0.254 mm
G Width of Inter-label notch/hole 0.25* to 0.50 in.
6.35 to 12.7 mm
I Min Refl. Mark Width 0.5 in.
12.7 mm
K Min. Refl. Mark Height 0.10 in.
2.54 mm
These figures are approximate and depend upon the active emulation and application.
* You may need to select Mark sensing instead of Gap sensing for notch widths .25 in. or less due to
limited inside travel of the Gap sensor.

Table of Contents

Other manuals for Printronix SL4M

Related product manuals