EasyManua.ls Logo

RC GROUP MP2000 - Board B Inlets;Outlets Diagram

RC GROUP MP2000
182 pages
Print Icon
To Next Page IconTo Next Page
To Next Page IconTo Next Page
To Previous Page IconTo Previous Page
To Previous Page IconTo Previous Page
Loading...
RC GROUP - 149_ItEn.0102
64
MP2000 AIR CONDITIONERS
Software per condizionatori d'aria EPROM CZX....
Software for air conditioners
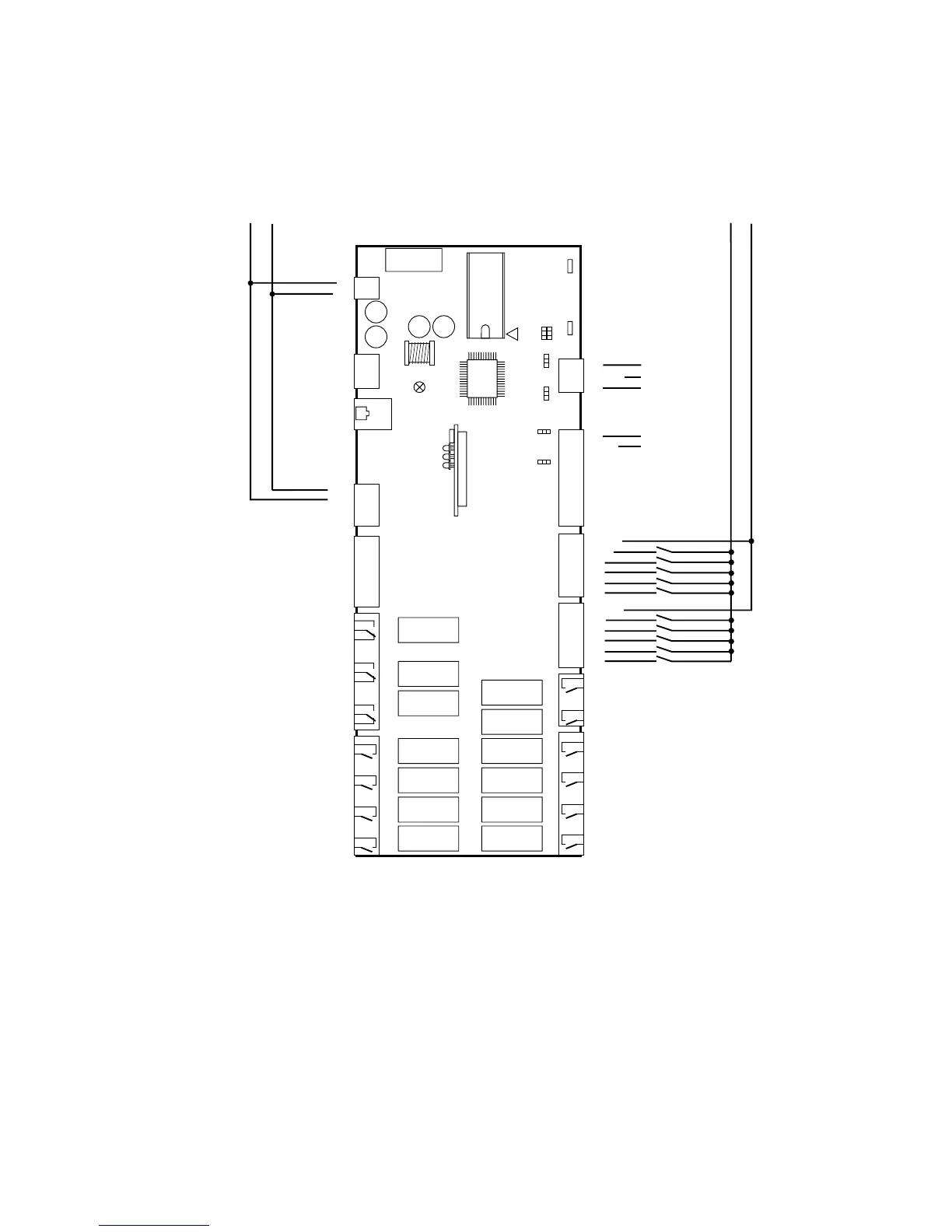
SCHEMA INGRESSI/USCITE BOARD "B"
Fig. 44
BOARD "B" INLETS/OUTLETS DIAGRAM
24Vac 24Vac
0÷1V / 4÷20mA
0÷1V / 4÷20mA
0÷1V / 4÷20mA
1
J17
1
1
1
J20
J22
1
J24
1
J6
1
J5
1
J4
1
J3
1
J2
1
J1
J15
J29
J9 J8
J21
J19
G
G0
J11
GND
RX/TX-
RX/TX+
ID11-230Vac
ID11-24Vac
ID11-R
-----------
ID12-R
ID12-24Vac
ID12-230Vac
NO8
C8
------
NO7
C7
------
NO6
C6
------
NO13
C13
C3
NO3
------
C4
NO4
------
C5
NO5
------
C12
NO12
C1
NO1
------
C2
NO2
IDCM1
ID5
ID4
ID3
ID2
ID1
IDCM2
ID10
ID9
ID8
ID7
ID6
B6
AVSS
B5
B4
AVSS
B3
B2
AVSS
B1
B8
+24Vcc
B7
NO11
C11
NC11
------
NO10
C10
NC10
------
NO9
C9
NC9
VG0
VG1
Y1
Y0
321
J14
321
3
2
1
3
2
1
3
2
1
J28
3
2
1
K11
FUSE
K10
K9
K8
K7
K6
K13
K3
K2
K1
K4
K5
K12

Table of Contents