EasyManua.ls Logo

REHM BARRACUDA RTC 60 - Page 41

REHM BARRACUDA RTC 60
55 pages
Print Icon
To Next Page IconTo Next Page
To Next Page IconTo Next Page
To Previous Page IconTo Previous Page
To Previous Page IconTo Previous Page
Loading...
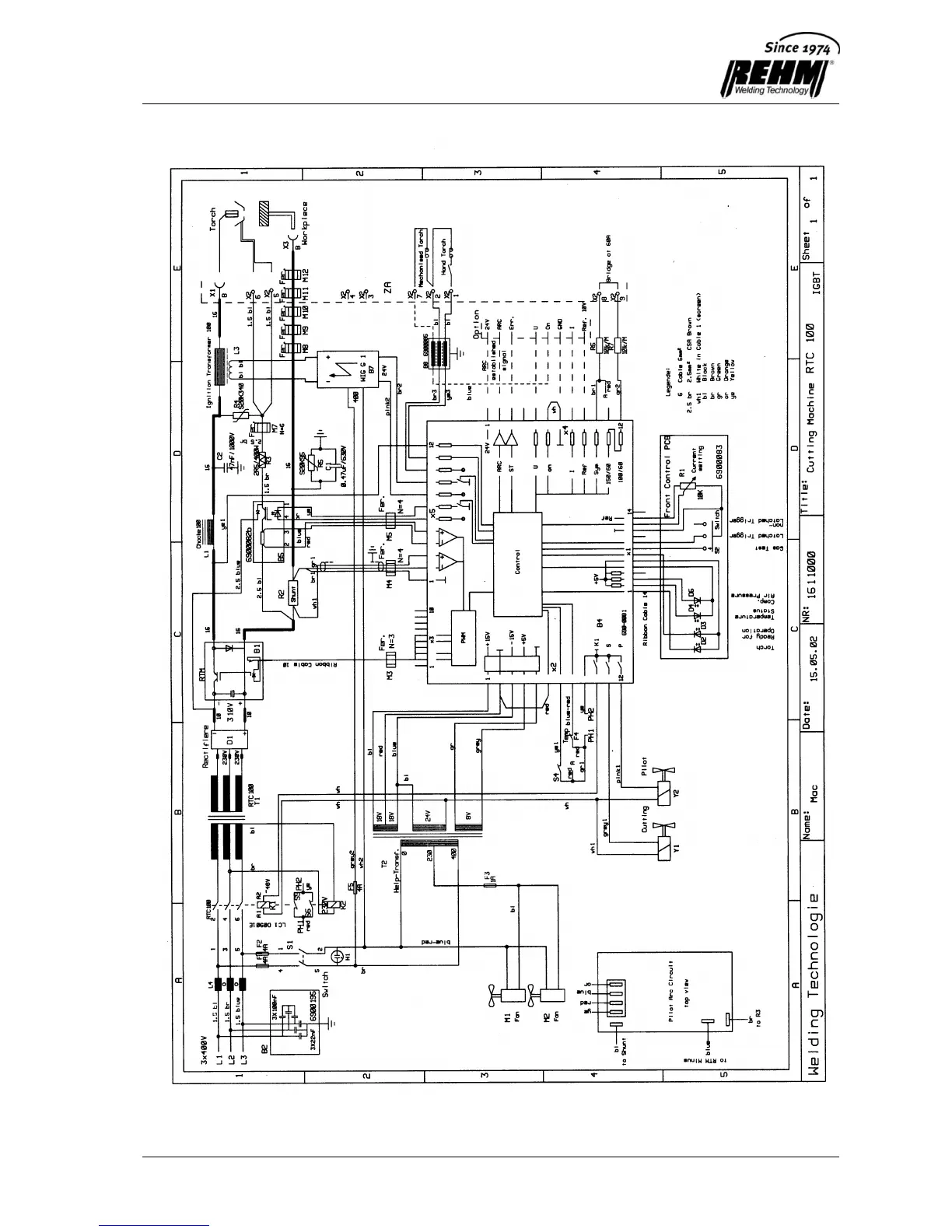
Circuit Diagrams
41

Table of Contents

Related product manuals