EasyManua.ls Logo

Siemens 6RA8018-6DV62

Siemens 6RA8018-6DV62
758 pages
To Next Page IconTo Next Page
To Next Page IconTo Next Page
To Previous Page IconTo Previous Page
To Previous Page IconTo Previous Page
Loading...
Connecting
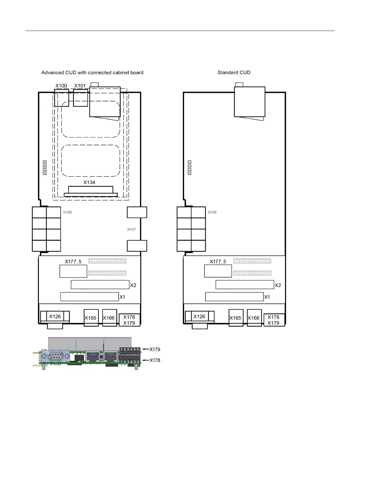
6.8 Arrangement of terminals and connectors
SINAMICS DCM DC Converter
158 Operating Instructions, 12/2018, A5E34763375A
Module – Control Unit (CUD), option G63
Figure 6-46 Terminal/connector arrangement on the "Control Unit (CUD)" – Option G63

Table of Contents

Related product manuals