EasyManua.ls Logo

Siemens 6RA8018-6DV62

Siemens 6RA8018-6DV62
758 pages
To Next Page IconTo Next Page
To Next Page IconTo Next Page
To Previous Page IconTo Previous Page
To Previous Page IconTo Previous Page
Loading...
Transportation, unpacking, installation
5.2 Installation
SINAMICS DCM DC Converter
80 Operating Instructions, 12/2018, A5E34763375A
5.2.1
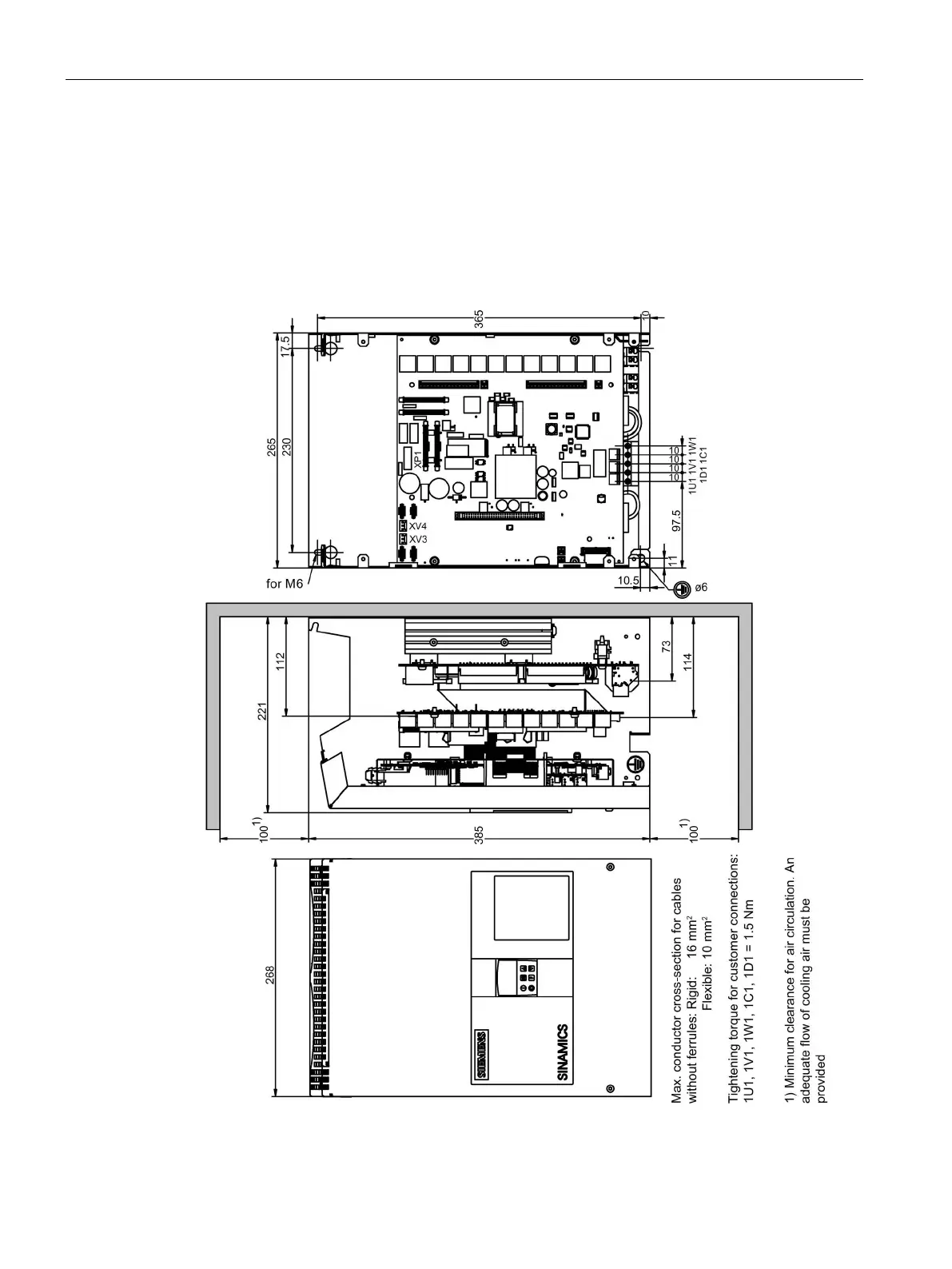
Dimension drawings
All dimensions in mm
Tolerance of the outer dimensions, +2 mm
Tolerance of the distances of the busbar holes for customer connections, ±1.5 mm
15 to 30 A, 4Q units
Figure 5-3 Dimension drawing, 15 A to 30 A, 4Q

Table of Contents

Related product manuals