EasyManua.ls Logo

Siemens 6RA8018-6DV62

Siemens 6RA8018-6DV62
758 pages
To Next Page IconTo Next Page
To Next Page IconTo Next Page
To Previous Page IconTo Previous Page
To Previous Page IconTo Previous Page
Loading...
Additional system components
7.5 Terminal Module TM31
SINAMICS DCM DC Converter
250 Operating Instructions, 12/2018, A5E34763375A
7.5.6
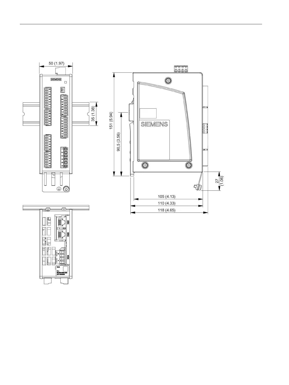
Dimension drawing
Figure 7-26 Dimension drawing of Terminal Module TM31, all data in mm and (inches)

Table of Contents

Related product manuals