EasyManua.ls Logo

Siemens S5-135U/155U - Page 251

Siemens S5-135U/155U
560 pages
To Next Page IconTo Next Page
To Next Page IconTo Next Page
To Previous Page IconTo Previous Page
To Previous Page IconTo Previous Page
Loading...
5-111
System Manual
C79000-G8576-C199-06
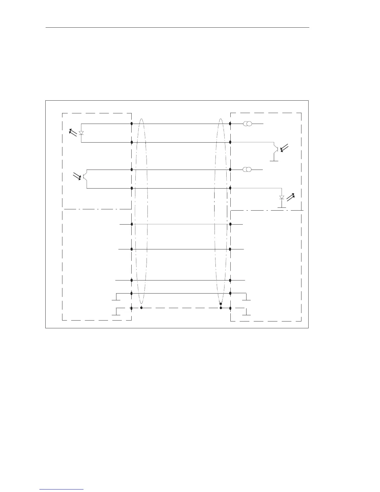
Connecting cable: CPU - DR 210/211, DR 230/231
You can use this connecting cable with both the TTY and the V.24
submodule. Ensure that you have the same type of interface in the CPU and
in the printer.
13
14
Receiver
1
Transmitter
+24V
+24V
Receiver
Transmitter
10
19
7
Shield
32
7
1
9
10
18
21
Housing
23
525
Housing,GND
CPU
+RxD
–RxD
+TxD
–TxD
+20mA
+20mA
+TxD
+RxD
V.24 Assignments
V.24 Assignments
DR 210/211, DR 230/231
Figure 5-24 TTY Submodule: Connecting Cable CPU - DR 210/211, DR 230/231
CPUs, Memor
y
Cards, Memor
y
Submodules, Interface Submodules

Table of Contents

Related product manuals