EasyManua.ls Logo

Siemens S5-135U/155U - Block Diagram; Mode of Operation

Siemens S5-135U/155U
560 pages
To Next Page IconTo Next Page
To Next Page IconTo Next Page
To Previous Page IconTo Previous Page
To Previous Page IconTo Previous Page
Loading...
10-3
System Manual
C79000-G8576-C199-06
10.1.2 Mode of Operation
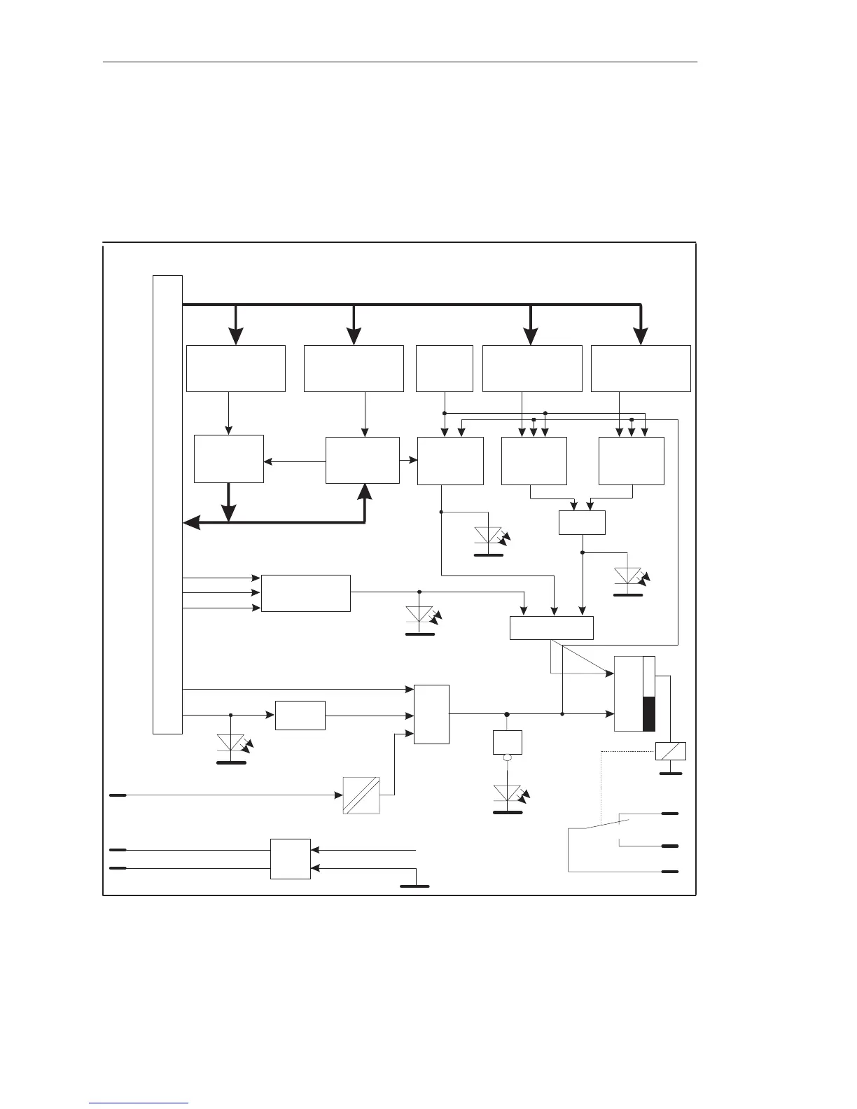
10.1.3 Block Diagram
Address comparison
Control signal
monitoring
MEMR
MEMW
RDY
Edge
BASP
R/W
DB
ADB
CPKL
S
R
RUN
Presel-
ection
of time
Address
comparison
Read and
compare
data
Bit
inversion
Daten
ausgeben
S5 Bus
Address bus
Data bus
Address
comparison
S1 S2 S3 S4
X4/5
X4/6
X4/4 RESET input
L+ (24V)
L–
internal +5V
internal 0V
X4/3
X4/2
X4/1
Relay contact
w1
Time
moni-
toring
Time
moni-
toring
Time
moni-
toring
Address
comparison
Address
comparison
w1
w1
Figure 10-2 Block Diagram
Monitorin
g
Module

Table of Contents

Related product manuals