EasyManua.ls Logo

Siemens S5-135U/155U - Connection of Sensors

Siemens S5-135U/155U
560 pages
To Next Page IconTo Next Page
To Next Page IconTo Next Page
To Previous Page IconTo Previous Page
To Previous Page IconTo Previous Page
Loading...
9-17
System Manual
C79000-G8576-C199-06
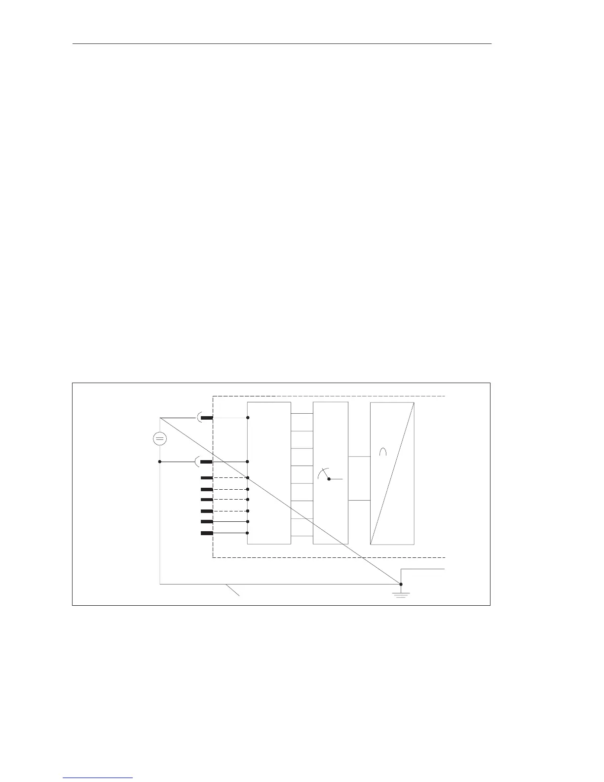
9.3.8 Connection of Sensors
Observe the following information when connecting the sensors.
With isolated sensors, it is possible for the measuring circuit to develop a
potential with respect to ground which exceeds the permissible potential
difference U
<M>CM
(see maximum values of the individual modules). To
prevent this, you must connect the negative potential of the sensor to the
reference potential of the module (0 V bus).
Example:
Temperature measurement on a busbar with insulated thermocouples
In the worst case, the measuring circuit can develop an excessively high
potential on account of a static charge or contact resistances. This must be
prevented with an equipotential bonding conductor.
The permissible potential difference (U
CM
) between the inputs and the 0V
bus must not be exceeded.
Depending on the system or type of sensor, the potential difference must be
kept in the permissible region with epuipotential bonding.
Equipotential Bonding Conductor
0 V Bus
+
U
E
A
D
Analog Input Module
Sensor, Isolated
MUX
M+
M–
#
Range
Card for
4 Inputs
Figure 9-6 Measuring Circuit with Equipotential Bonding Conductor for the 460 Analog Input Module
Connection of
Current or Voltage
Sensors
Equipotential
Bonding
Analog Input/Output Modules

Table of Contents

Related product manuals