EasyManua.ls Logo

Siemens S5-135U/155U - Page 447

Siemens S5-135U/155U
560 pages
To Next Page IconTo Next Page
To Next Page IconTo Next Page
To Previous Page IconTo Previous Page
To Previous Page IconTo Previous Page
Loading...
9-65
System Manual
C79000-G8576-C199-06
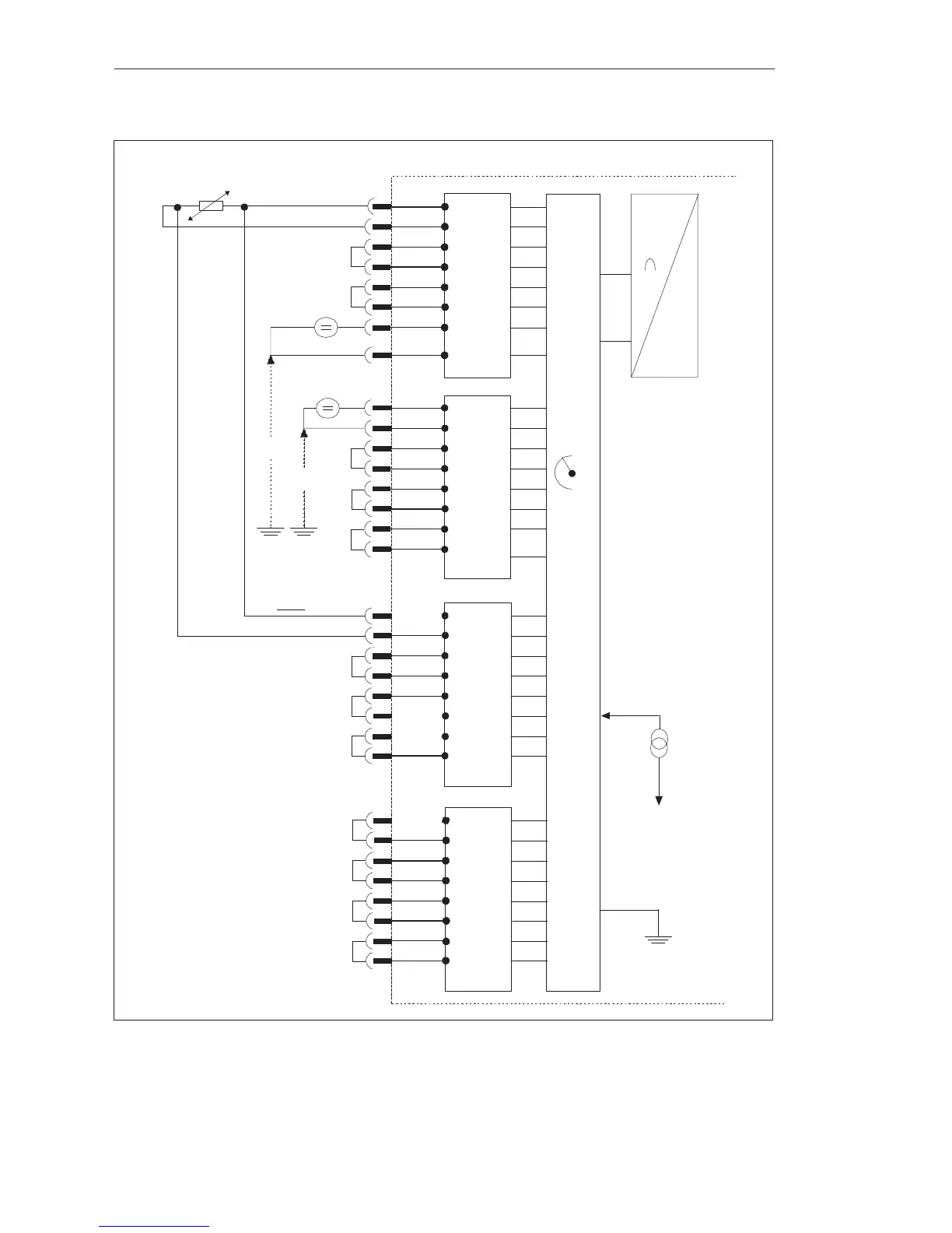
465 Analog Input Module
+
MUX
A
D
Card 1
U
CM
U
CM
Pt100
0...500mV
I
C+
I
C–
CH0
CH3
CH4
Card 2
U/I
I
const.
CH7
6ES5498-
Range
Card for
4 Inputs
6ES5-498-
-1AA11
-1AA11
-1AA21
-1AA31
-1AA41
-1AA51
-1AA61
-1AA71
1)
1)
Card 3
2.5mA
I
const.
+5V
Current Source for
Pt 100 Operation
Card 4
2)
2)
2)
2)
2)
2)
2)
2)
2)
2)
2)
2)
2)
M+
M–
M+
M–
#
Range
Card for
4 Inputs
6ES5-498-
-1AA11
Range
Card for
4 Inputs
6ES5-498-
-1AA11
-1AA41
-1AA71
Figure 9-24 Connecting a Pt 100
1) When cards 6ES5 498-1AA21, 6ES5 498-1AA31 or 6ES5 498-1AA61 are used, no broken wire signal may be activated for this
group of channels (CH4 to CH7).
2) If cards 6ES5 498-1AA41 or 6ES5 498-1AA71 are used, a short-circuit jumper is not required.
Analo
g
Input/Output Modules

Table of Contents

Related product manuals