EasyManua.ls Logo

Siemens S5-135U/155U - Page 73

Siemens S5-135U/155U
560 pages
To Next Page IconTo Next Page
To Next Page IconTo Next Page
To Previous Page IconTo Previous Page
To Previous Page IconTo Previous Page
Loading...
4-7
System Manual
C79000-G8576-C199-06
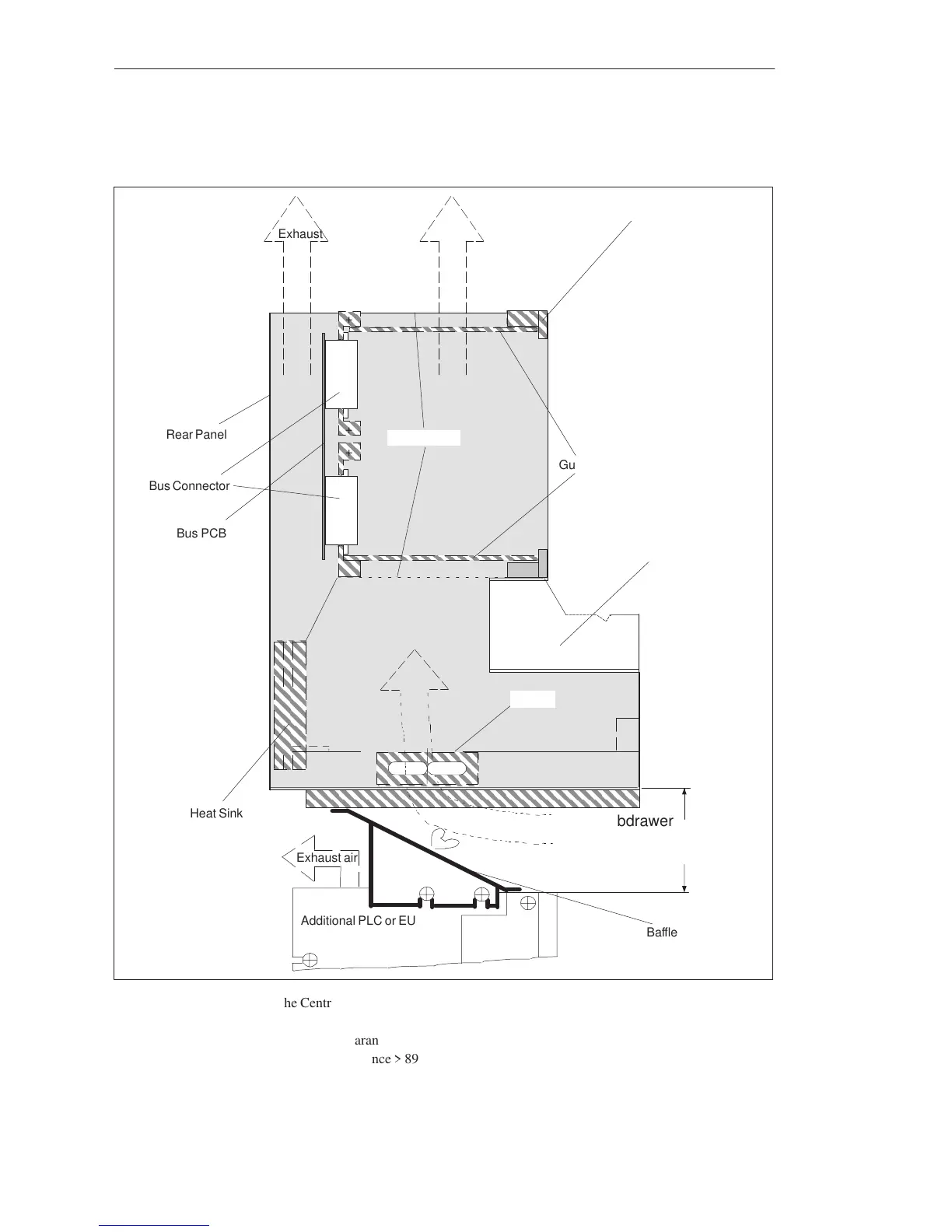
An air supply as shown in the following illustration must be ensured.
ÈÈÈÈÈ
ÈÈÈÈÈ
ÈÈÈÈÈ
ÈÈÈÈÈ
ÈÈÈÈÈ
ÈÈÈÈÈÈÈÈÈÈÈÈÈÈÈ
ÈÈÈÈÈÈÈÈÈÈÈÈÈÈÈ
ÈÈ
ÈÈ
ÈÈ
ÈÈ
ÈÈ
ÈÈ
ÈÈ
ÈÈ
ÈÈ
ÈÈ
ÈÈ
ÈÈ
ÈÈ
+
+
+
Heat Sink
Exhaust air
Additional PLC or EU
Baffle
Rear Panel
ÈÈÈÈÈÈÈÈÈ
ÈÈÈÈÈÈÈÈÈ
Bus Connector
Bus PCB
Guide Rail
d
1)
Supply air
ÈÈÈ
ÈÈÈ
È
È
Locking Bar
Cable
Duct
ÈÈ
ÈÈ
Fan
Shield
Filter Subdrawer
Exhaust
air
+
ÈÈÈÈÈÈÈÈÈ
Exhaust
air
Figure 4-3 Air Supply to the Central Controller
1)
d: Clearance > 87 mm when a baffle is used
d: Clearance > 89 mm when a filter subdrawer is fitted
d: Clearance > 75 mm without filter subdrawer
Central Controllers and Expansion Units Power Suppl
y
Unit
s

Table of Contents

Related product manuals