EasyManua.ls Logo

Siemens SINAMICS S120 - Active Line Modules + Active Interface Modules; Design

Siemens SINAMICS S120
530 pages
To Next Page IconTo Next Page
To Next Page IconTo Next Page
To Previous Page IconTo Previous Page
To Previous Page IconTo Previous Page
Loading...
SINAMICS S120 Cabinet Modules
Engineering Information
SINAMICS Engineering Manual – November 2015
Ó Siemens AG
422/528
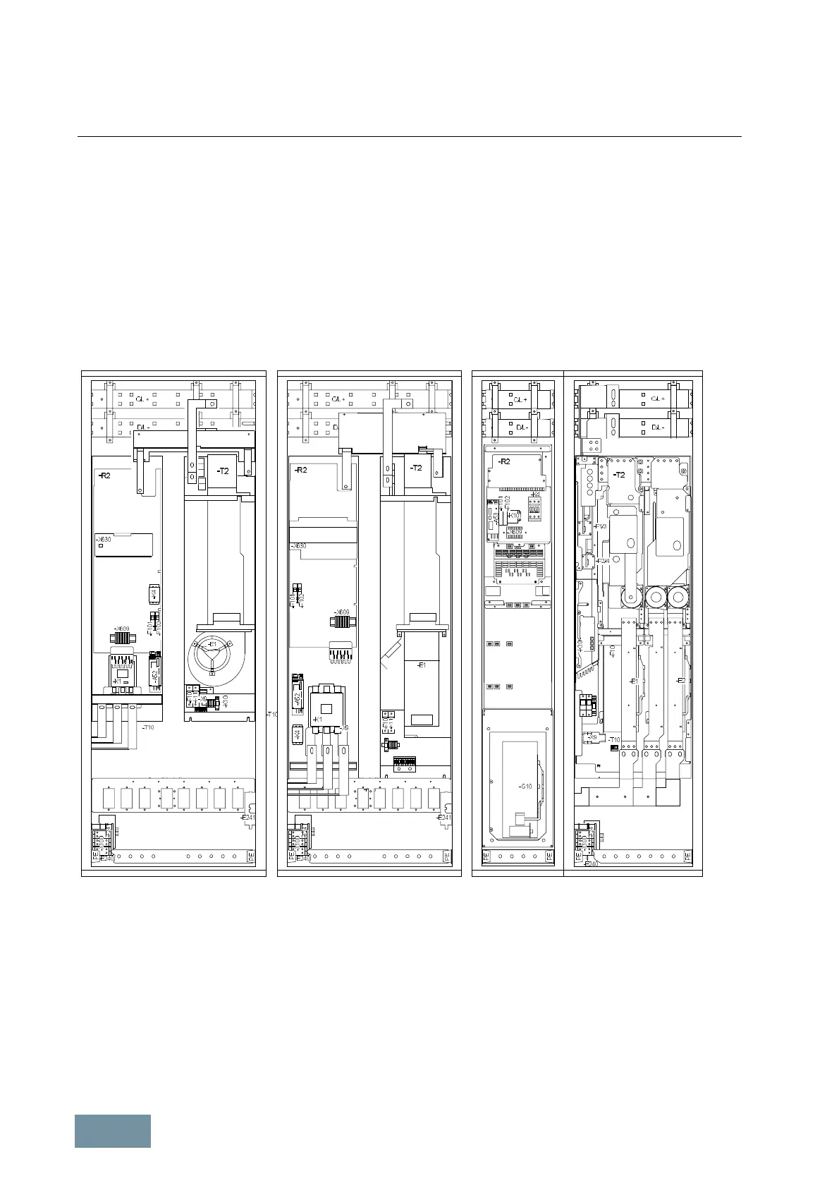
7.2.7 Active Line Modules + Active Interface Modules
7.2.7.1 Design
Active Line Modules are available for S120 Cabinet Modules in the output power range of 132 to 900 kW at 400 V or
630 to 1400 kW at 690 V, and they can be operated only in combination with their associated Active Interface
Modules.
Active Line Modules and their associated Active Interface Modules can be used in combination with Line Connection
Modules. Active Line Modules and the associated Active Interface Modules must be directly connected to the Line
Connection Module and they cannot be installed at a remote location from the LCM. Possible combinations can be
found in the section "Line Connection Modules".
Air-cooled Active Line Modules with associated Active Interface Modules in frame sizes FX+FI, GX+GI and HX+HI
When ordered as S120 Cabinet Modules, Active Line Modules are available only in combination with the associated
Active Interface Modules and they have one order number. Active Line Modules with Active Interface Modules in
frame sizes FX+F1 and GX+G1 are assembled in the same cabinet frame. Frame sizes with higher output power
ratings are housed in separate cabinet frames. An Active Line Module cannot operate without an Active Interface
Module. All the necessary wiring connections between the individual modules in this module combination are made at
the factory to reduce the possibility of wiring errors during configuring, assembly and commissioning.
Within the Active Line Module / Active Interface Module combination, the Voltage Sensing Module is located in the
Active Interface Module. The relevant DRIVE-CLiQ connection to the Active Line Module is provided as standard. An
optional terminal block and an optional CU320-2 Control Unit are mounted in the Active Line Module.

Table of Contents

Other manuals for Siemens SINAMICS S120

Related product manuals