EasyManua.ls Logo

Siemens SINAMICS S120 - Heat Exchanger Modules; Design and Operating Principle

Siemens SINAMICS S120
530 pages
To Next Page IconTo Next Page
To Next Page IconTo Next Page
To Previous Page IconTo Previous Page
To Previous Page IconTo Previous Page
Loading...
SINAMICS S120 Cabinet Modules
Engineering Information
SINAMICS Engineering Manual – November 2015
Ó Siemens AG
476/528
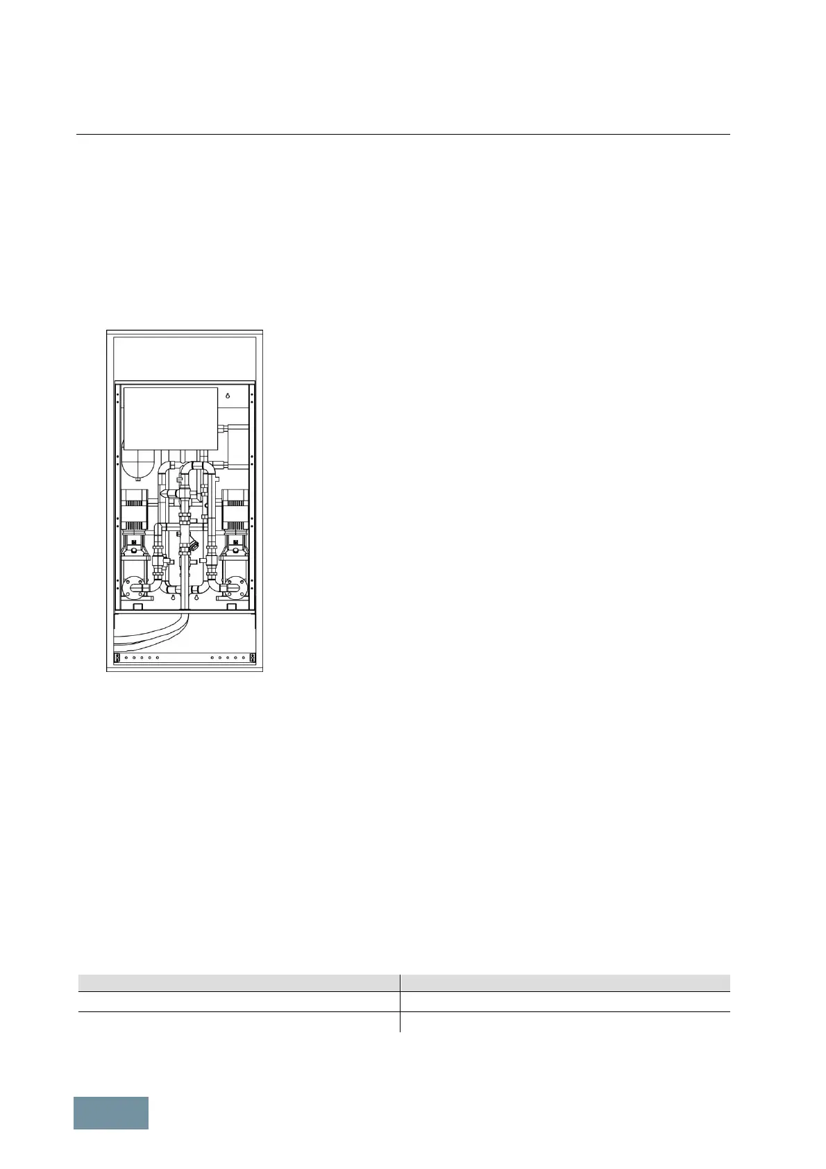
7.3.9 Heat Exchanger Modules
7.3.9.1 Design and operating principle
Heat Exchanger Modules supply the converter-side closed deionized water circuit of liquid-cooled SINAMICS S120
Cabinet Modules and separate this circuit from the plant-side raw water circuit. A Heat Exchanger Module essentially
comprises a pump, a water-to-water heat exchanger and a 3-way valve including the relevant fittings, sensors and
controllers.
Example of a Heat Exchanger Module
The coolant flowing through the converter-side deionized water circuit is heated up by the power losses of the S120
Cabinet Modules when they are in operation. It is circulated by the pump (or optionally by two pumps in a redundant
system) and flows through the stainless steel water-to-water heat exchanger that is connected to the plant-side raw
water circuit. As a result, the coolant in the converter-side deionized water circuit is cooled down by the plant-side
raw water and flows back into the S120 Cabinet Modules.
Condensation protection is implemented by regulating the coolant temperature in the inflow line of the converter-side
deionized water circuit to a fixed, adjustable setpoint. The coolant temperature is regulated by the Heat Exchanger
Module which has an integral control system in combination with a 3-way valve (bypass valve) for this purpose.
The operating pressure between the inflow and return flow lines of the deionized water circuit can be reduced by
means of a ball valve in the inflow line of the Heat Exchanger Module. By this means it is possible to adjust the
pressure and volumetric flow rate in the deionized water circuit to such a level that the installed S120 Cabinet
Modules can be operated within the specified pressure and volumetric flow rate limits. Throttling down the pressure
using the ball valve is especially effective or even necessary if only a small drive line-up is connected to the Heat
Exchanger Module.
Heat Exchanger Modules are available for the following line voltages and cooling capacities (rated cooling power):
Line supply voltage Cooling capacity (rated cooling power)
380 V -10 % – 415 V +10 % 3AC / 50 Hz
32 kW / 48 kW / 72 kW / 110 kW
660 V -10 % – 690 V +10 % 3AC / 50/60 Hz
32 kW / 48 kW / 72 kW / 110 kW
The following diagram illustrates the design and the major components of the Heat Exchanger Module

Table of Contents

Other manuals for Siemens SINAMICS S120

Related product manuals