EasyManua.ls Logo

Sinoboom 0608ME - Electrical Schematic Diagram

Sinoboom 0608ME
79 pages
Print Icon
To Next Page IconTo Next Page
To Next Page IconTo Next Page
To Previous Page IconTo Previous Page
To Previous Page IconTo Previous Page
Loading...
© Jan. 2024 42 0608ME All Maintenance Manual
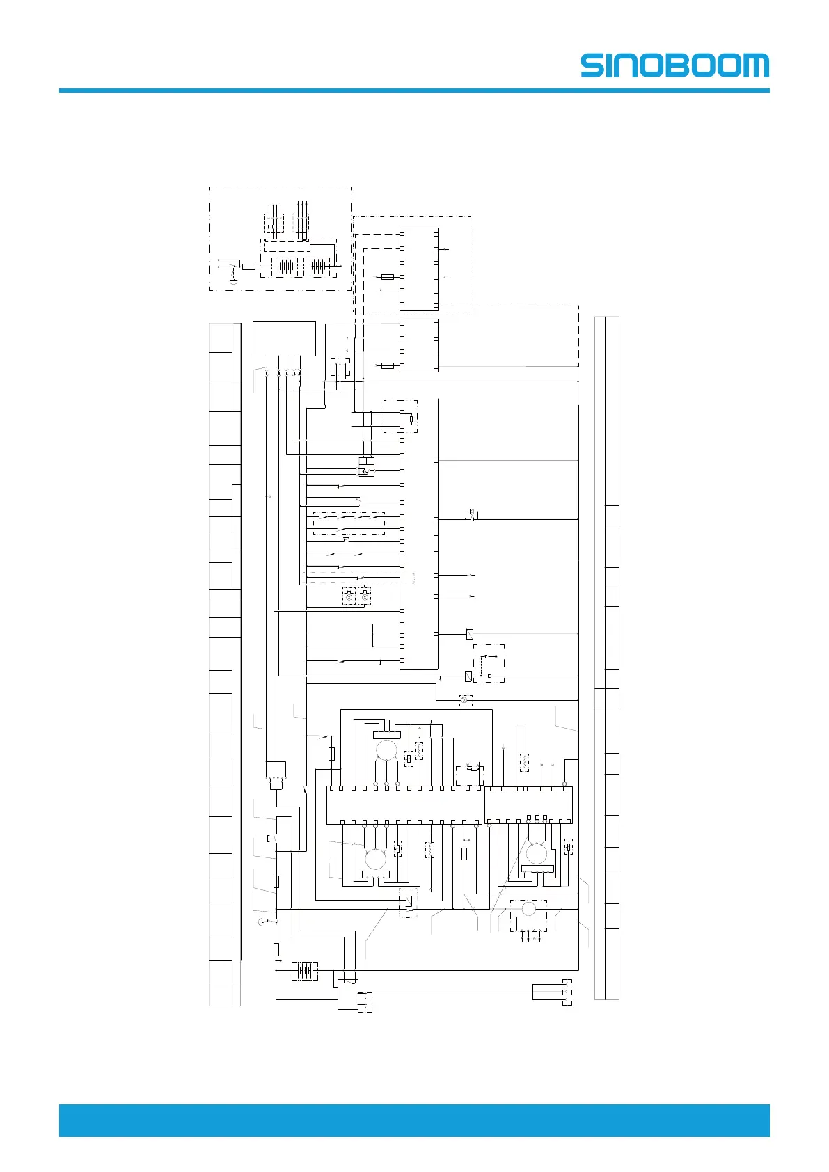
ELECTRICAL SYSTEM
8.4 ELECTRICAL SCHEMATIC
DIAGRAM
Fig. 2 Electrical Schematic Diagram
A-13
A-16
A-21
A-22A-23A-14A-25A-5A-4
A-15A-20A-18A-6A-30A-19
A-17
US
VS
WS
UM
M1
3~
4
3
1
2
6
5
A-19
A-4
A-15
A-33
B-4
-
+
A-24
B-5
A-9
A-20
3404
VM
WM
M2
3~
A-32
A-28
A-3
A-30
A-31
A-18
CAN1H
CAN1L
A-27
B-
F2(10A)
B+
S0
1
2
05
B
B1
1
3
4
2
06
3001
06
06
08
CAN1H
CAN1LCANH
CANL
CH1
Charger
+
-
CANH
CANH
6
5
Bat+
Bat-
K2
K2
K1
B-11 B-12
CANL
00
04
03
F1(275A)
01
02
30
02
04
04
32
33
L-U
L-V
L-W
R-U
R-V
R-W
34
36
37
38
30
39
40
323
41
42
220V~
1
3
6
4
7
8
25
00
CANL
+B
35
CAN1H
CAN1L
07
07
PCBA
08
Battery
Manul Switch
Emergency Switch
Key Switch
Lower Switch
Flash Light
Upper
Pothole
Alarm
Switch
Charger
guard switch
Collision
Foot
Switch
Sensor
Angle
Sensor
Level
CAN
PCU
GPS
Horn
Steer Right
Steer Left
Relay
CAN1H
CAN1L
Lift Motor Controller
8
7
8
7
4
3
1
2
120Ω
SQ2
SQ3
SQ4
SQ1
SQ5
SQ6
SQ7
SQ8
SQ9
U4
Temp Sensor
Temp Sensor
Right Brake
Left Brake
(VCC+)
(CANH)
(CANL)
(ACC)
(GND)
(DI)
GPS Model(China)
ECU
MC1
08
CAN1H
CAN1L
F3(1A)
24V
Light
Option
Option
Option
Option
120Ω
A-10
53
43
F4 (10A)
A-13
F5(10A)
44
A-21
2
3
4
charging 24V+
charging 24V-
charging CANH3
charging CANL3
08
CAN1L
CAN1H
C
B
A
+B
A-29
53
31
31
31
+B
322
K3
B-14
K3
321
(+)
(-)
(A)
+
-
-
+
+
-
-
+
(B)
(+)
(-)
(A)
(B)
00
A-34
red
white
black
4
3
1
U7
CANL
CANH
-
+
-
+
BMS
1
2
3
4
charging
24V+
charging
24V-
charging
CANH3
charging
CANL3
C
A
B
key signal 24V+
machine CANH
machine CANL
08
CAN1H
CAN1L
Manul Switch
Bat+
Bat-
F1 (275A)
120Ω
Lithium battery charger port
Lithium battery communication port
Lithium Battery Schematic:
1
2
3
5
6
4
109
(ACC)
(GND)
GPS Model(except China)
7
8
12
11
+B
(ACC) (VCC+)
06
08
06
06
35
210
327
326
GPS use except China
210326
SQ10
A-1
Switch
(CANH)
(CANL)
CAN1H
CAN1L
1
2
00
00
Lift Limit
Option
Bat+
09
210
07
07
07
209
211
212
219
220
214
217
213
07
07
323
302
301
A-35
A-3
M3
3~
5
1
2
3
(+)
(-)
(C)
(B)
4
(A)
1
A-13
A-14
A-5
A-18
A-10
A-4
A-2
turn right
turn left
A-25
B+
U
V
W
U
V
W
MC2
A-28
A-27
CAN1H
CAN1L
CAN1H
CAN1L
8
7
-
+
A-6
323
44
323
2
6
Temp Sensor
-
+
A-22
00
Brake
B-
00
04
44
45
46
47
48
49
50
51
52
M4
1
2
3
4
(CANH)
(CANL)
(Retract)
(Extend)
302
CAN1H
CAN1L
301
04
Steering
Motor
Lifting
Motor
00
00
Left walk Motor
Right walk Motor
Motor Controller
Travel
A-2
SQ11
223
Fully retracted
Switch
85
86
85
86
85
86
35mm2
3mm2
3mm2
35mm2
35mm2
1mm2
2.5mm2 1.5mm2 1.5mm2 1mm2
2.5mm2
35mm2 35mm2
1mm2
0.75mm2
1mm2
35mm2
25mm2
Lithium battery communication port
Lithium battery charger port

Table of Contents

Related product manuals