EasyManua.ls Logo

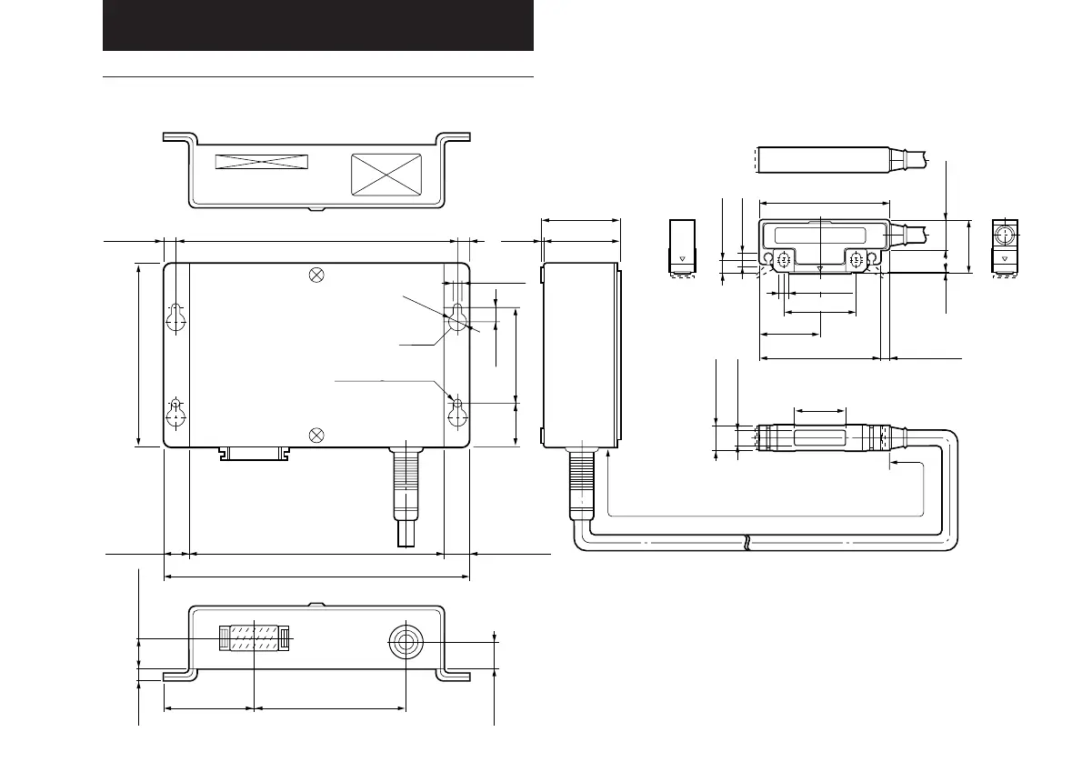
Sony Digiruler PL21 - Pl21;Pl22; 外形寸法図

Sony Digiruler PL21
Print Icon
To Next Page IconTo Next Page
To Next Page IconTo Next Page
To Previous Page IconTo Previous Page
To Previous Page IconTo Previous Page
Loading...
15
138/5.43"6/0.24"
(6)/(0.24")
126/4.96"
150/5.91"
(12)/(0.47")
12/0.47"
92/3.62"
50/1.97"
6.5
0.26"
4.6/0.18"
75/2.95"45/1.77"
5/0.19" 1.6/0.63"
13/0.51"
7/0.28"
6/0.24"
63/2.48"
29.5
1.16"
15/0.59"
26.5
1.04"
59/2.32"
12/0.47"
7.6/0.3"
4.5/0.18"
28.6/1.13"
35/1.38"
(4)/(0.16")
1
0.04"
37/1.46"
(38.9)/(1.53")
(1.9)
(0.07")
21
0.83"
Ø8
Hole
Loch
2-Ø4.6 hole
Bohrung 2-Ø4.6
Cable length:3/9.8',10/32.8'(m/feet)
Kabellänge:3(m),10(m)
5.外形寸法図
PL21/PL22
単位:mm/インチ
ケーブル長 3m,10m
2-φ4.6穴

Related product manuals