EasyManua.ls Logo

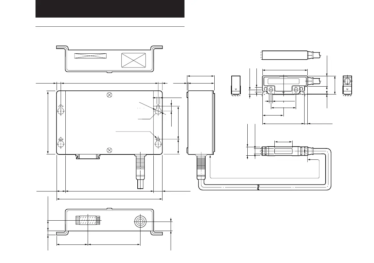
Sony Digiruler PL21 - 5 Abmessungen; Pl21;Pl22

Sony Digiruler PL21
Print Icon
To Next Page IconTo Next Page
To Next Page IconTo Next Page
To Previous Page IconTo Previous Page
To Previous Page IconTo Previous Page
Loading...
47
138/5.43"6/0.24"
(6)/(0.24")
126/4.96"
150/5.91"
(12)/(0.47")
12/0.47"
92/3.62"
50/1.97"
6.5
0.26"
4.6/0.18"
75/2.95"45/1.77"
5/0.19" 1.6/0.63"
13/0.51"
7/0.28"
6/0.24"
63/2.48"
29.5
1.16"
15/0.59"
26.5
1.04"
59/2.32"
12/0.47"
7.6/0.3"
4.5/0.18"
28.6/1.13"
35/1.38"
(4)/(0.16")
1
0.04"
37/1.46"
(38.9)/(1.53")
(1.9)
(0.07")
21
0.83"
Ø8
Hole
Loch
2-Ø4.6 hole
Bohrung 2-Ø4.6
Cable length:3/9.8',10/32.8'(m/feet)
Kabellänge:3(m),10(m)
5. Abmessungen
PL21/PL22
Einheit: mm/Zoll

Related product manuals