EasyManua.ls Logo

Sony Digiruler PL21 - 5. DIMENSIONS; PL21;PL22 Dimensions

Sony Digiruler PL21
Print Icon
To Next Page IconTo Next Page
To Next Page IconTo Next Page
To Previous Page IconTo Previous Page
To Previous Page IconTo Previous Page
Loading...
31
138/5.43"6/0.24"
(6)/(0.24")
126/4.96"
150/5.91"
(12)/(0.47")
12/0.47"
92/3.62"
50/1.97"
6.5
0.26"
4.6/0.18"
75/2.95"45/1.77"
5/0.19" 1.6/0.63"
13/0.51"
7/0.28"
6/0.24"
63/2.48"
29.5
1.16"
15/0.59"
26.5
1.04"
59/2.32"
12/0.47"
7.6/0.3"
4.5/0.18"
28.6/1.13"
35/1.38"
(4)/(0.16")
1
0.04"
37/1.46"
(38.9)/(1.53")
(1.9)
(0.07")
21
0.83"
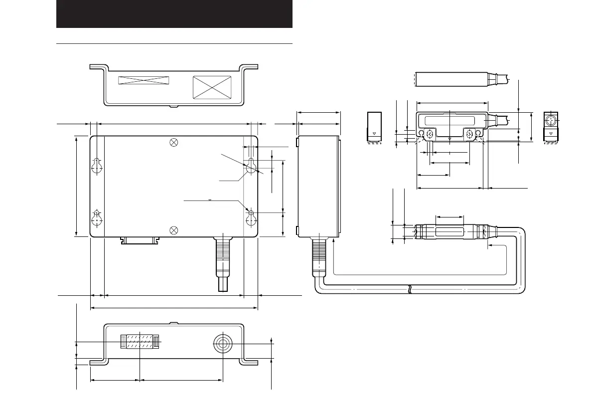
Ø8
Hole
Loch
2-Ø4.6 hole
Bohrung 2-Ø4.6
Cable length:3/9.8',10/32.8'(m/feet)
Kabellänge:3(m),10(m)
5. DIMENSIONS
PL21/PL22
2-Ø406 hole
Hole
Cable length:3/9.8', 10/32.8'(m/feet)
Unit : mm/inch

Related product manuals