EasyManua.ls Logo

Sony HCD-BC150 - IC Block Diagrams; TRANSLATION Board; PANEL Board; MAIN Board

Sony HCD-BC150
218 pages
Print Icon
To Next Page IconTo Next Page
To Next Page IconTo Next Page
To Previous Page IconTo Previous Page
To Previous Page IconTo Previous Page
Loading...
52
HCD-BC150/BC250
IC Block Diagrams
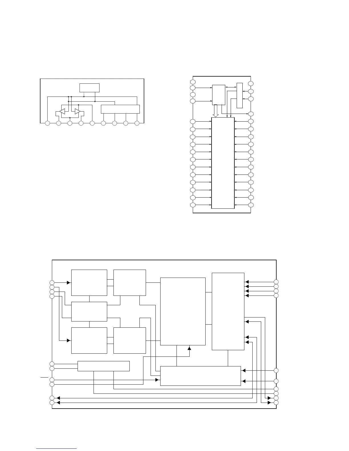
IC701, 711 BA6956AN
1
2
3
4
5
6
7
8
9
CONTROL LOGIC
TSD
VREF
OUT2
OUT1
RNF
VM
VCC
FIN
GND
RIN
IC802 BU2152FS
7
2
3
4
8
1
6
5
CONTROLLER
SHIFT
REGISTER
32
31
30
9
10
11
12
13
14
15
16
17
18
19
20
21
22
23
24
25
26
27
28
29
LATCH
Q1-Q24
VDD
CLB
STB
SO
P24
P23
P22
P21
P20
P19
P18
P17
P16
P15
P14
P13
P12
P11
P10
P9
P8
P7
P6
P5
P4
P3
P2
P1
DATA
VSS
CLK
VSS
IC501 PCM1802DBR
VINL 1
VINR
2
VERF1
3
VERF2
4
VCC
5
AGND
6
PDWN 7
BYPAS
8
FSYNC
9
LRCK
10
MODE120
MODE0
19
FMT1
18
FMT0
17
OSR16
SCKI15
VDD
14
DGCD
13
DOUT
12
BCK
11
Single-End
/Differential
Converter
5 th Order
Delta-Sigma
Modulator
5 th Order
Delta-Sigma
Modulator
Reference
Single-End
/Differential
Converter
× 1/64 (× 1/128)
Decimation
Filter
with
DC Cut Filter
Power Supply
Clock and Timing Control
Serial
Interface
Mode/
Format
Control
TRANSLATION Board – – PANEL Board –
– MAIN Board –

Table of Contents

Related product manuals