EasyManua.ls Logo

Sony HCD-DR3 - Printed Wiring Board CD Decoder Section

Sony HCD-DR3
52 pages
Print Icon
To Next Page IconTo Next Page
To Next Page IconTo Next Page
To Previous Page IconTo Previous Page
To Previous Page IconTo Previous Page
Loading...
HCD-DR3/DR330/XB200
2424
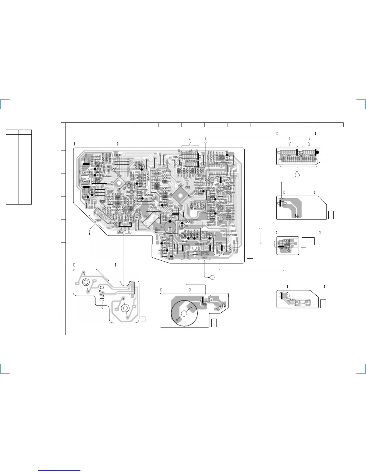
5-9. PRINTED WIRING BOARD CD DECORD SECTION
• Refer to page 15 for Circuit Boards Location.
D
TO MAIN BOARD
CN301
(Page 18)
E
TO FRONT BOARD
CN11 (Page 26)
11
(11)
(4146266810)
11
(11)
(4146266820)
11
(11)
(4146266830)
11
(11)
(4146266860)
11
(11)
(4146266840)
11
(11)
(4146266850)
MOTOR
M102
SLED
CN03
6
1
M101
SPINDLE
MOTOR
M
_
+
_
S05
LIMIT
+
_
M
_
MOTOR (6P) (C) BOARD
MOTOR BOARD
CD SENSOR BOARD
DISC NO BOARD
PHOTO SOCKET BOARD
CONNECTOR BOARD
1-639-678-
11
M
_
(TABLE MOTOR)
1
4
13
1
1
2
3
1
2
3
4
5
CD DECODER BOARD
1
1
1
111
1
16
1
46 3
2
9
7
B
B
E
E
9
2
16
15
B
B
E
E
B
B
B
B
E
E
E
B
B
B
E
E
E
E
1
3
R47
SENSO1
CN05
C43
S06
CN08
MO1
PH01
CD DIGITAL
OUTOUT
(OPTICAL)
D06
CN06
(DISC NO LED)
OPTICAL PICK-UP
BLOCK
KSM-213ECM/C2NP
1
221
16
12
A
B
C
D
E
F
G
H
I
3456789101112
Ref. No. Location
D02 D-3
D05 E-6
D06 D-11
IC01 C-3
IC02 C-6
IC03 D-4
IC04 B-7
IC05 F-5
Q01 C-2
Q02 B-2
Q03 E-5
Q04 E-6
Q06 D-4
Q07 C-7
Q09 D-7
Q10 C-7
Q11 D-7
Q12 C-8
Q13 D-8
Q14 C-7
Semiconductor
Location

Related product manuals