EasyManua.ls Logo

Sony RDR-GX310 - Page 80

Sony RDR-GX310
123 pages
Print Icon
To Next Page IconTo Next Page
To Next Page IconTo Next Page
To Previous Page IconTo Previous Page
To Previous Page IconTo Previous Page
Loading...
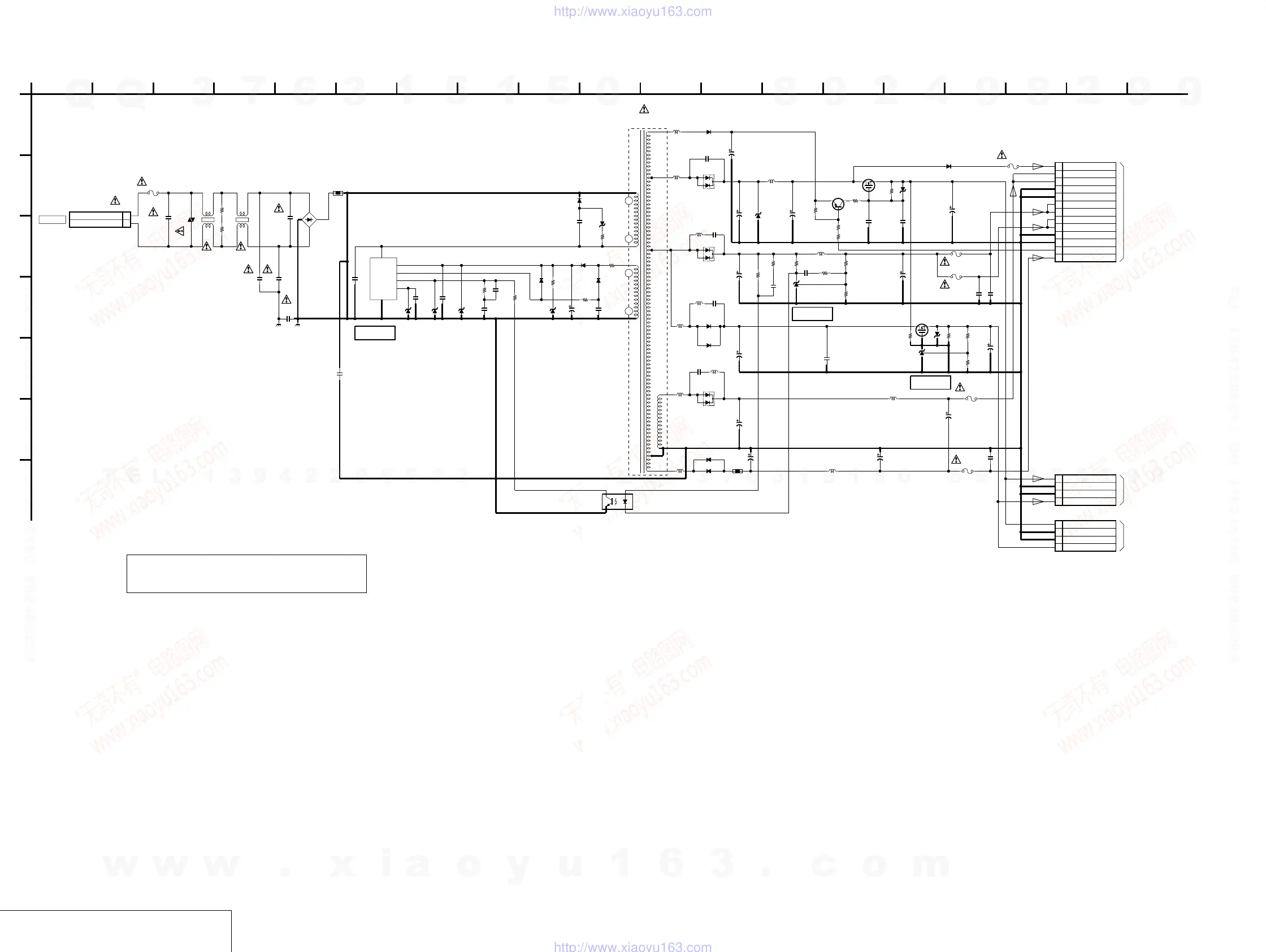
RDRGX310/HX710/HX910
2P
CNXXX
1INLET LIVE
2INLET NEUTRAL
F101
31.5A/250V
C101
0.22u
275V
R101
1M
R103
1M
C1113
470p
250V
C114
470p
250V
C117
0.1u
275V
D101
D3SB60
TH101
C1116
100p
250V
C115
100p
250V
C104
47p
2kV
D108
RD39ESAB2
D109
RD39ESAB2
D110
RD39ESAB2
C107
0.47u
C110
0.33u
C108
0.47u
C109
0.1u
R107
1k
R106
1k
D111
D1N60
D107
RD22ESAB2
R108
470
R105
620k
C105
10u
50V
D106
ERA91-02
C106
1000p
250V
D105
DINF60
R104
27
D102
EG01C
D103
IZ51
2W
R102
27k
C103
2200p
500V
L201
L203
D201
DINF60
D301
SF10LC20U
C301
1000p
250V
D401
SF15SC6
L401
C401
1000p
250V
L502
L501
C501
1000p
250V
D501
LI136
D502
LI136
L601
D601
SF15SC6
C601
1000p
250V
L602
L702
D702
D1NL20U
D701
D1NL20U
TH701
C201
56u
35V
L302
D302
RD18FB2
C302
470u
25V
C303
35V
56u
R308
10k
Q302
2SB709A-S
C402
1800u
10V
C502
1000u
10V
C602
1000u
10V
C701
56u
35V
13P
CN3
1 UNSW+12V
2 UNSW+4V
3 UNSW+4V
4GND
5GND
6 UNSW+6VB
7 UNSW+6VB
8 UNSW+6VA
9 UNSW+6VA
10 GND
11 GND
12 P_CONT
13 UNSW-8V
R303
10k
R305
100k
Q301
FQPF13N06L
C304
0.1u
C305
0.1u
R301
10k
D303
RD18ESAB2
R302
10k
R401
47
R406
47
C408
0.1u
R402
1k
IC401
TL341AI
L402
4.7uH
C403
0.47u
R403
10k
± 0.5%
R404
3.3k
± 0.5%
R405
2.49k
C405
470u
10V
C503
0.1u
Q501
FQPF13NL06L
IC501
TL431AI
R501
1k
R502
100k
D503
RD18ESAB2
± 0.5%
R503
2.61k
± 0.5%
R504
2.49k
C504
47u
16V
C306
470u
25V
D304
ERA83-004
F301
1A/250V
F402
2A/250V
F401
2A/250V
C407
0.1u
C406
0.1u
4P
CN1
1 SW12V
2 DGND
3 DGND
4 SW5V
L603
10uH
C702
56u
35V
L701
10uH
F701
1A/250V
C603
56u
35V
F601
3.15A/250V
C703
0.1u
1
A
X101
ENE471D-10A
4P
CN2
1 SW12V
2 DGND
3 DGND
4 SW5V
AC INLET
L101
20uH
L102
12mH
VCC
CL
FB
VDD
D
S
IC101
M1P2G70MY
9
8
6
3
SWITCH
SW12V REG
SHUNT REG
IC401
SHUNT REG
IC501
SWITCHING
IC101
T101
CONVERTER
TRANSFORMER
SW5V REG
910 15
G
16
38524 166 14
F
1812
E
7131711
D
C
B
(ZSSR417IA)
SWITCHING REGURATOR(RDR-HX910:E model)
TO
AV-089 BOARD(1/8)
CN102
(SEE PAGE 4-5)
TO
DVD UNIT
19
TO
HDD UNIT
PC101
PS2561
PHOTO COUPLER
Note : The components identified by mark 0 or dotted
line with mark 0 are critical for safety.
Replace only with part number specified.
4-59 4-60
ZSSR417IA
(SWITCHING REGULATOR)(RDR-HX910:E model)
w
w
w
.
x
i
a
o
y
u
1
6
3
.
c
o
m
Q
Q
3
7
6
3
1
5
1
5
0
9
9
2
8
9
4
2
9
8
T
E
L
1
3
9
4
2
2
9
6
5
1
3
9
9
2
8
9
4
2
9
8
0
5
1
5
1
3
6
7
3
Q
Q
TEL 13942296513 QQ 376315150 892498299
TEL 13942296513 QQ 376315150 892498299
http://www.xiaoyu163.com
http://www.xiaoyu163.com

Table of Contents

Other manuals for Sony RDR-GX310

Related product manuals