EasyManua.ls Logo

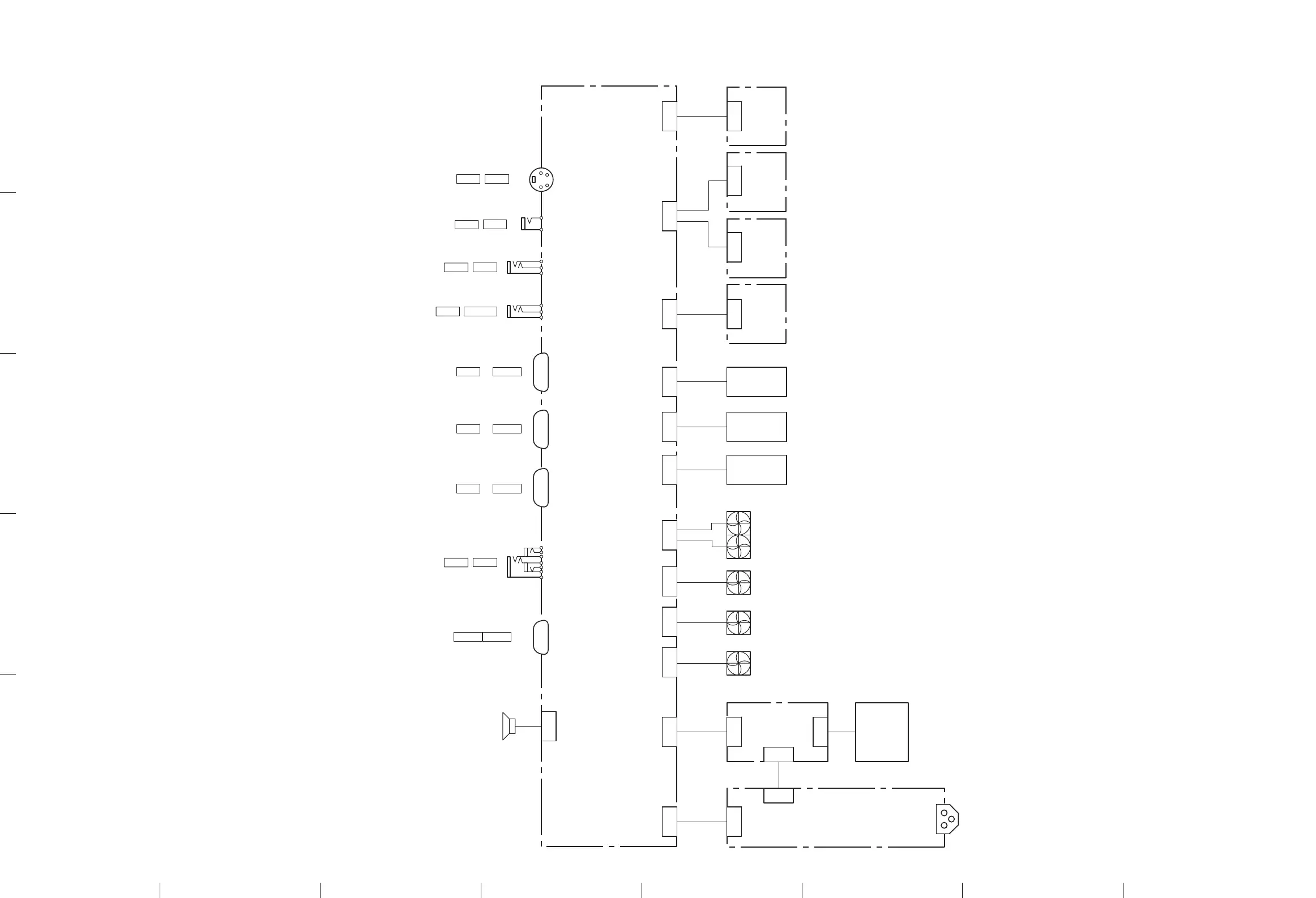
Sony VPL-ES5 - VPL-EX50 Frame Schematic Diagrams

Sony VPL-ES5
44 pages
Print Icon
To Next Page IconTo Next Page
To Next Page IconTo Next Page
To Previous Page IconTo Previous Page
To Previous Page IconTo Previous Page
Loading...
6-2
VPL-ES5/EX5/EX50/EX5U/EW5
6-2
2
3
4
5
ABCDEFGH
1
CN601
CN605
HALOGEN
LAMP
BALLAST UNIT
POWER BOARD
FAN2
FAN3
FAN1(FRONT BOTTOM)
FAN5
(REAR BOTTOM)
FAN4
(REAR TOP)
CN701J17
SPEAKER
J11
J18
J6
J1
J20
J21
J14
J19
J16
J22
J23
J24
J1
INPUT
INPUT B
J2
INPUT
INPUT A
J3
OUTPUT
MONITOR
J14
VIDEO
J5
S VIDEO
INPUT
INPUT
J7
RS-232C
REMOTE
CN1
CN1
J26
J1
THERMAL
SENSOR
BOARD
DETECTION
SWITCH
BOARD
(LAMP DOOR)
DETECTION
SWITCH
BOARD
(DUST DOOR)
LCD R
IR
SENSOR
BOARD
MAIN
BOARD
LCD G
LCD B
INPUT
J9
AUDIO A/B
INPUT
J8
AUDIO
OUTPUT
J10
AUDIO
Frame (VPL-EX50) Frame (VPL-EX50)
VPL-EX50

Other manuals for Sony VPL-ES5

Related product manuals