EasyManua.ls Logo

SPX FLOW Johnson pump - Parts List and Sectional Drawing KGEF, Bearing Bracket 00, 0 and 0+ (+)

SPX FLOW Johnson pump
57 pages
Print Icon
To Next Page IconTo Next Page
To Next Page IconTo Next Page
To Previous Page IconTo Previous Page
To Previous Page IconTo Previous Page
Loading...
KGE/EN (1711) 6.5 Parts 51
KGE
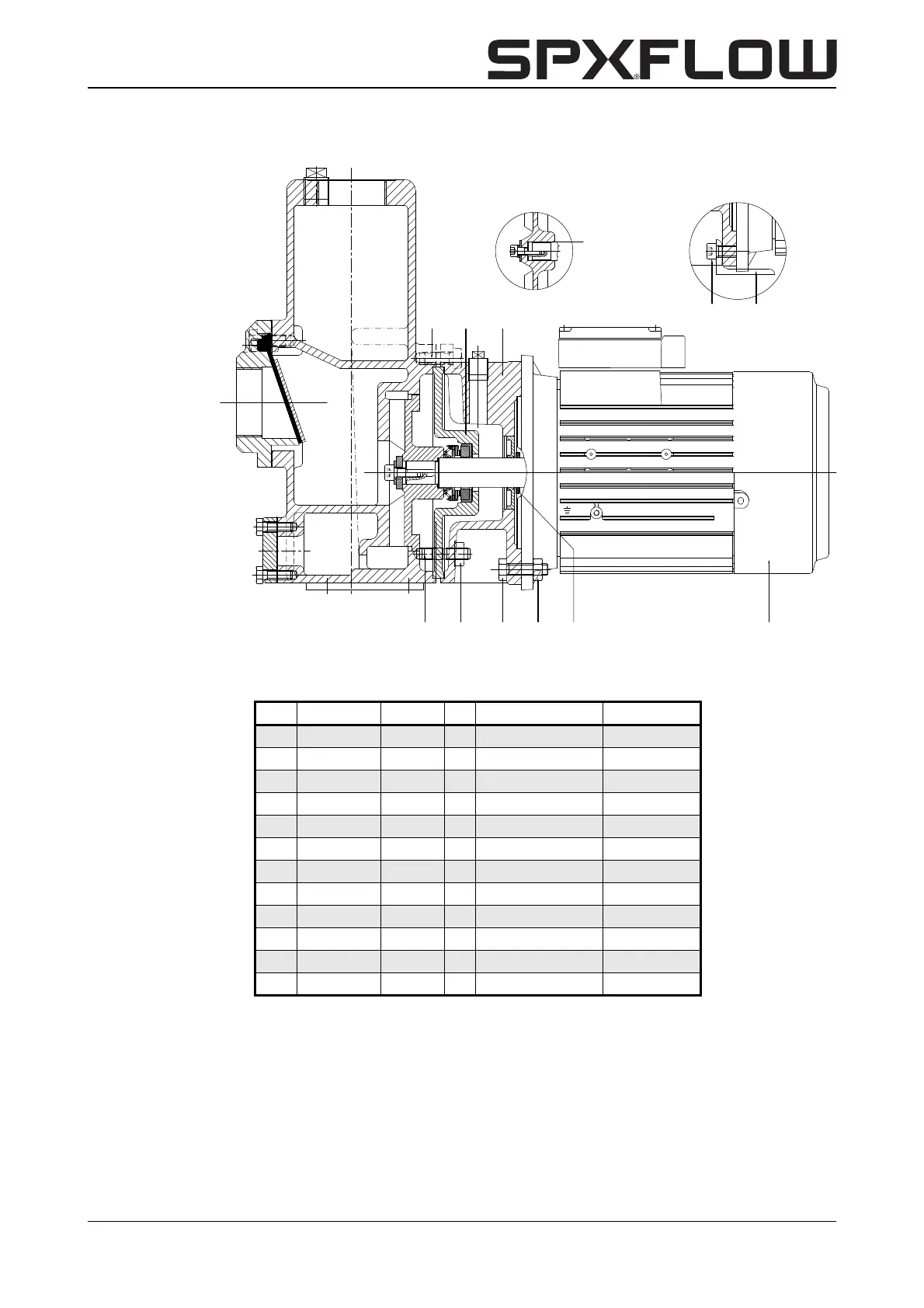
10.9 Parts list and sectional drawing KGEF, Bearing bracket 00, 0 and 0+ (+)
For general parts, see part list of basic construction
(a) Only for KGEF11-3 and KGEF11-4
(b) Not for KGEF11-3 and KGEF11-4
(c) Only for KGEF14-8, KGEF15-6 and KGEF16-6
(d) Not for KGEF12-6
*) 4 pieces for KGEF11-3 and KGEF11-4
Figure 25:
Item Spare part Remark Qty Description Material
0110 1 lantern piece cast iron
0140 1 intermediate piece cast iron
0330 * (a) 1 tolerance ring stainless steel
0340 * 1 deflector rubber
0400 1 motor steel
0490 (b) 2 stud steel
0500 2(*) tap bolt steel
0530 4 tap bolt steel
0535 (b)(d) 4 nut steel
0570 (b) 2 nut steel
2000 (c) 1 support steel
2010 (c) 1 Allen screw steel
03300330
0140014005000500 01100110
20102010
0535053505300530
20002000
0400040004900490 05700570 03400340

Table of Contents

Related product manuals