EasyManua.ls Logo

TCM FB30-7 - Page 44

TCM FB30-7
175 pages
Print Icon
To Next Page IconTo Next Page
To Next Page IconTo Next Page
To Previous Page IconTo Previous Page
To Previous Page IconTo Previous Page
Loading...
3. CONTROL SYSTEM
- 32 -
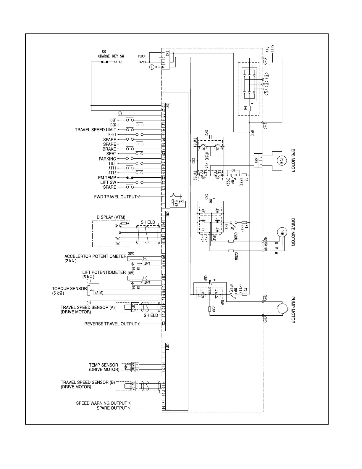
Fig. 3.4 Controller Wiring (1.0- to 2.5-ton Trucks)

Table of Contents

Other manuals for TCM FB30-7

Related product manuals