EasyManua.ls Logo

Trane CGAM - Page 199

Trane CGAM
276 pages
Print Icon
To Next Page IconTo Next Page
To Next Page IconTo Next Page
To Previous Page IconTo Previous Page
To Previous Page IconTo Previous Page
Loading...
CG-SVX17D-EN 199
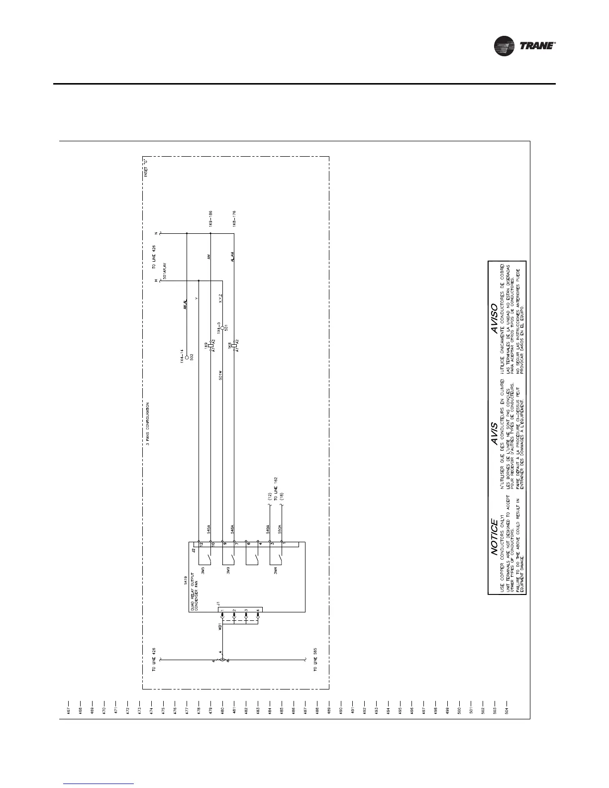
Unit Wiring
20-35 Ton - “Slant Frame” - Fan Control, 2 & 3 Fan Units

Table of Contents

Related product manuals