EasyManua.ls Logo

Trane CGAM - Page 254

Trane CGAM
276 pages
Print Icon
To Next Page IconTo Next Page
To Next Page IconTo Next Page
To Previous Page IconTo Previous Page
To Previous Page IconTo Previous Page
Loading...
254 CG-SVX17D-EN
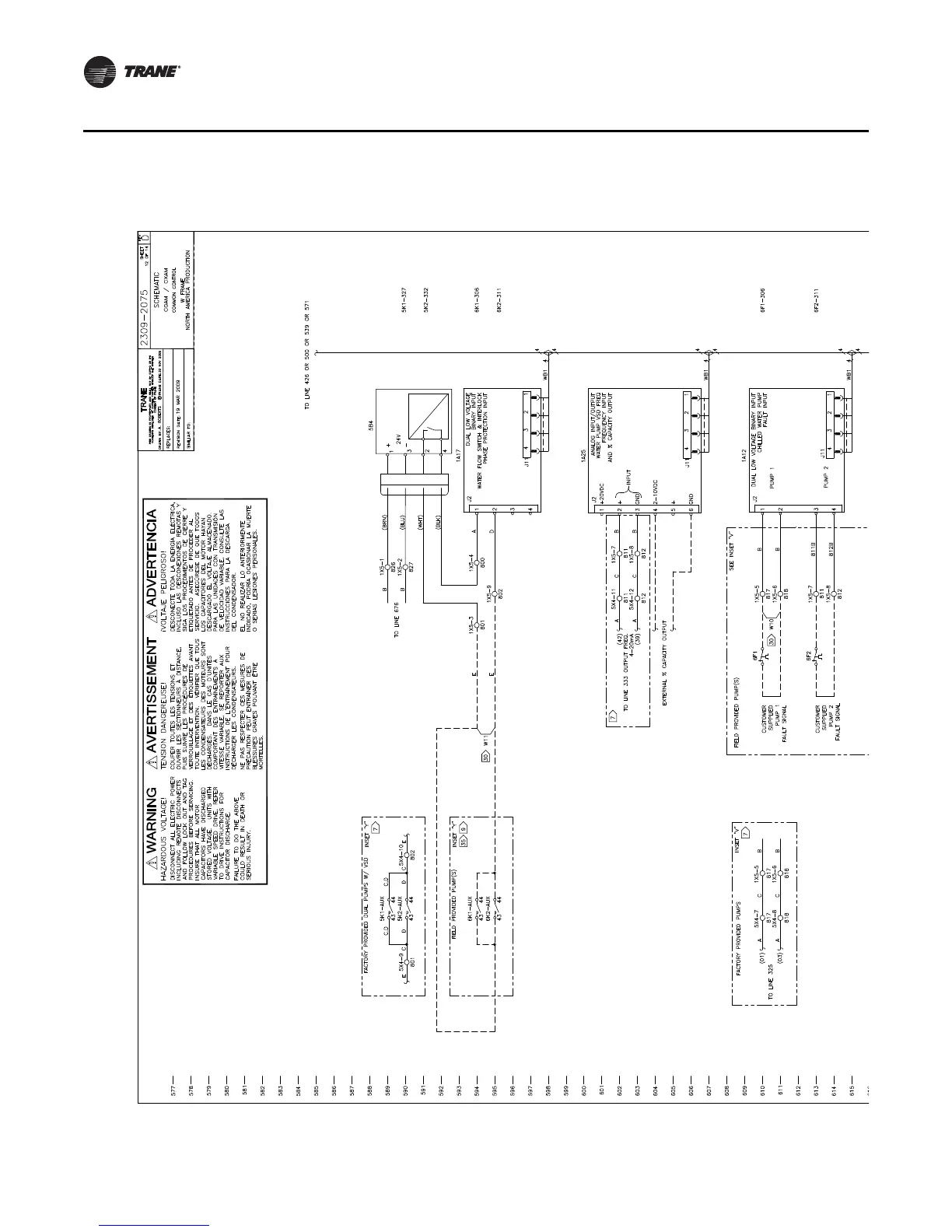
Unit Wiring
W2075-12
80-130 Ton - “W Frame” - Common Control

Table of Contents

Related product manuals