EasyManua.ls Logo

Trane CGAM - Page 261

Trane CGAM
276 pages
Print Icon
To Next Page IconTo Next Page
To Next Page IconTo Next Page
To Previous Page IconTo Previous Page
To Previous Page IconTo Previous Page
Loading...
CG-SVX17D-EN 261
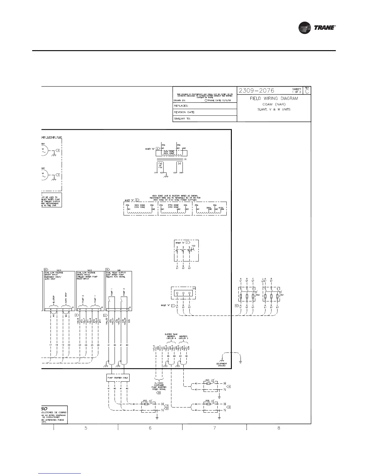
Unit Wiring
C
TRANE
Field Wiring Diagram

Table of Contents

Related product manuals