EasyManua.ls Logo

Trane CGAM - Page 265

Trane CGAM
276 pages
Print Icon
To Next Page IconTo Next Page
To Next Page IconTo Next Page
To Previous Page IconTo Previous Page
To Previous Page IconTo Previous Page
Loading...
CG-SVX17D-EN 265
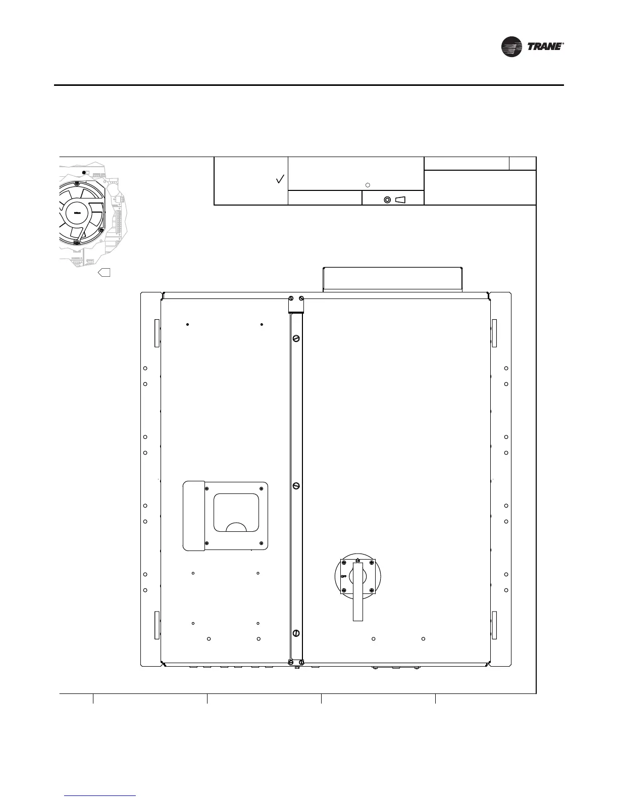
Unit Wiring
D
ETAIL A
C
ATED BEHIND PANEL)
57206468
1 1
DIAGRAM
COMPONENT LOCATION
CONTROL PANEL
SLANT UNIT
TRANE
THIS DRAWING IS PROPRIETARY AND SHALL NOT BE COPIED OR ITS
CONTENTS DISCLOSED TO OUTSIDE PARTIES WITHOUT THE WRITTEN
CONSENT OF TRANE
DRAWN BY: DATE:
DO NOT SCALE PRINT
X,
X,X
X,XX
THIRD ANGLE PROJECTION
J.Watts
24-APR-2009
c
= C
3,0
= C
= C
5
1,50
UNLESS OTHERWISE SPECIFIED ALL
DIMENSIONS ARE IN MILLIMETERS.
TOLERANCE:
ANGLES =
C HOLE DIA =
+0,5
- 0,5
CONFORMS TO ASME Y14.5M - 1994
1
SHEET
OF
REV
~
FINISH
TRANE
C
1234
1M1
1A1
DOOR SHOWN ON (WITH VENTILATED PANEL)
2
20-35 Ton - “Slant Frame” - Component Location

Table of Contents

Related product manuals