EasyManua.ls Logo

Trane CGAM - Page 269

Trane CGAM
276 pages
Print Icon
To Next Page IconTo Next Page
To Next Page IconTo Next Page
To Previous Page IconTo Previous Page
To Previous Page IconTo Previous Page
Loading...
CG-SVX17D-EN 269
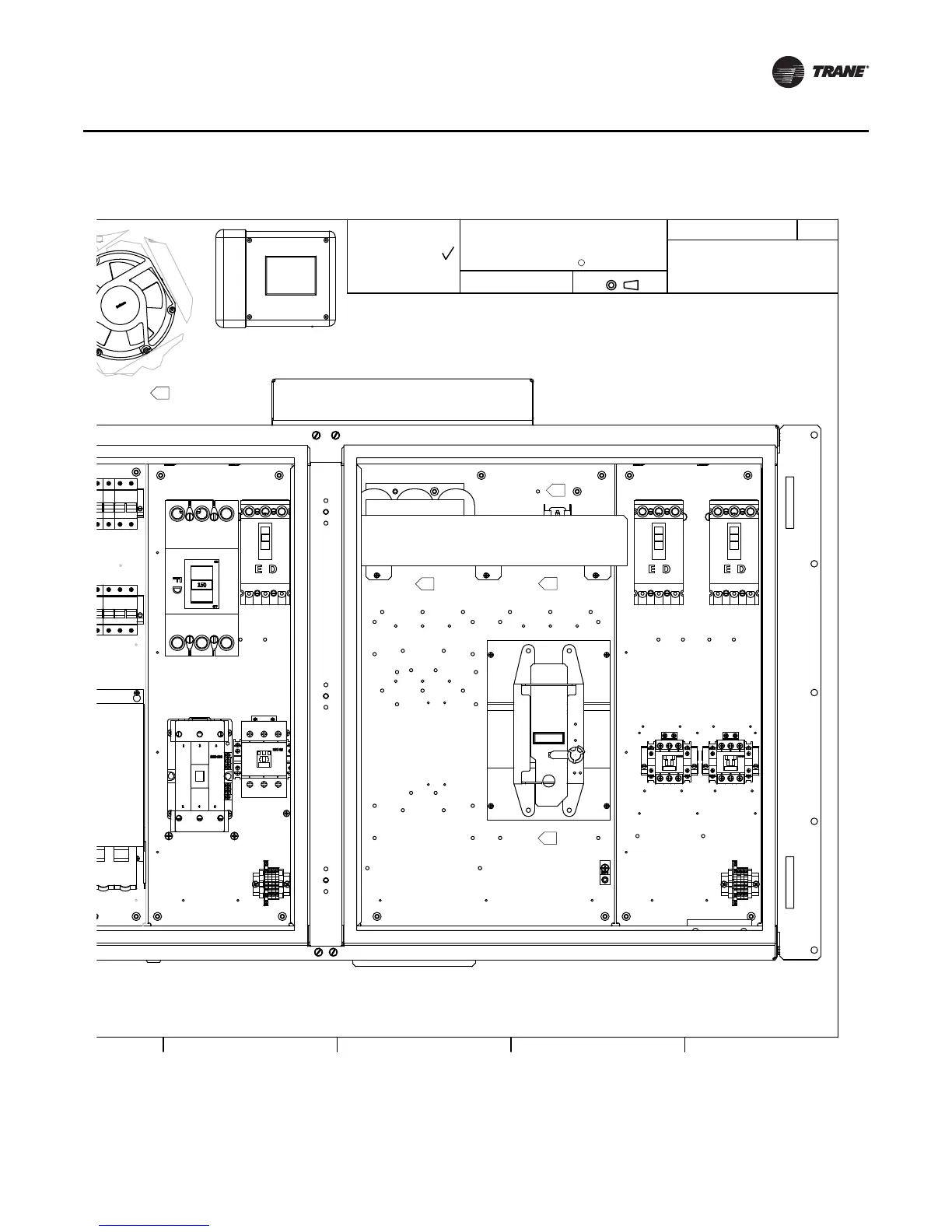
Unit Wiring
D
ETAIL A
A
TED BEHIND PANEL)
57206469
1 1
DIAGRAM
COMPONENT LOCATION
CONTROL PANEL
V UNIT
TRANE
THIS DRAWING IS PROPRIETARY AND SHALL NOT BE COPIED OR ITS
CONTENTS DISCLOSED TO OUTSIDE PARTIES WITHOUT THE WRITTEN
CONSENT OF TRANE
DRAWN BY: DATE:
DO NOT SCALE PRINT
X,
X,X
X,XX
THIRD ANGLE PROJECTION
J.Watts
24-APR-2009
c
= C
3,0
= C
= C
5
1,50
UNLESS OTHERWISE SPECIFIED ALL
DIMENSIONS ARE IN MILLIMETERS.
TOLERANCE:
ANGLES =
C HOLE DIA =
+0,5
- 0,5
CONFORMS TO ASME Y14.5M - 1994
1
SHEET
OF
REV
~
FINISH
TRANE
C
1234
1M1
1A1
DYNAVIEW IS MOUNTED
ON CONTROLS DOOR
1K2
1K1
1X3
1Q6
1Q5
CKT1
1S1
1T2
1T3
CKT1-1Q1/1X1
CKT2
1Q8
1Q9
1K4
1K5
1X9
1
F
1
0
1
F
7
1
F
5
1
F
6
1A36
1
F
2
1
F
3
8
1
F
3
9
1
F
4
0
S
HOWN OFF (WITH VENTILATED PANEL)
1
4
4
3
3
40-70 Ton - “V Frame” - Component Location

Table of Contents

Related product manuals