EasyManua.ls Logo

Vertical Express LD-16 - Page 60

Vertical Express LD-16
116 pages
Print Icon
To Next Page IconTo Next Page
To Next Page IconTo Next Page
To Previous Page IconTo Previous Page
To Previous Page IconTo Previous Page
Loading...
Clutch Installation and Adjustment LD-16 Door Operator - Modernization
52 © Vertical Express
Clutch Installation and Adjustment
(continued)
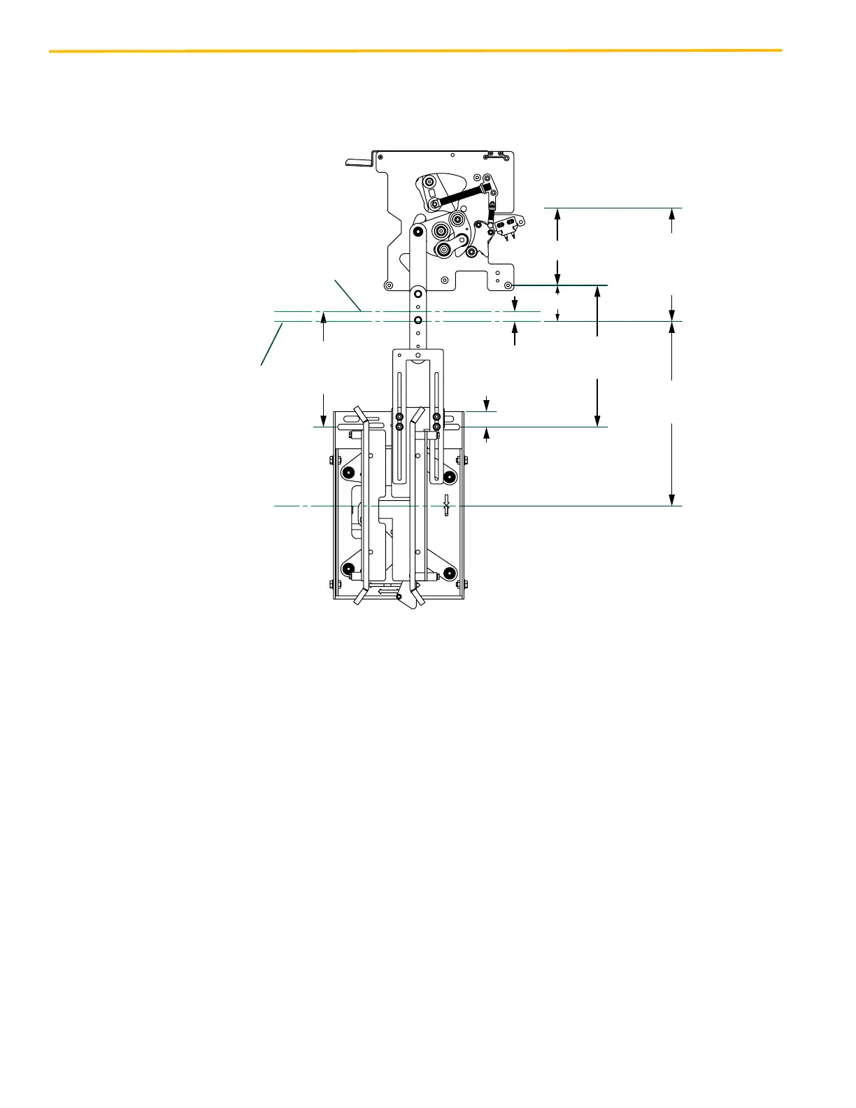
Figure 47 - Adjust Clutch and Linkage
.750 Door Lap
8.535
Top of Door Track
Above Clear Opening
When Using Car
Door Adapter Angles
2.716
5.819
8.406
Location
for 2SCO
13.151
8.151
1.161
Top of
Door Panel
Clear Opening
HL =
16.375 Max
11.375 Min

Table of Contents