EasyManua.ls Logo

Vertiv Liebert DSE - Page 113

Vertiv Liebert DSE
136 pages
Print Icon
To Next Page IconTo Next Page
To Next Page IconTo Next Page
To Previous Page IconTo Previous Page
To Previous Page IconTo Previous Page
Loading...
REV : 3
REV DATE : 5/18
DPN003531
Page :1 /1
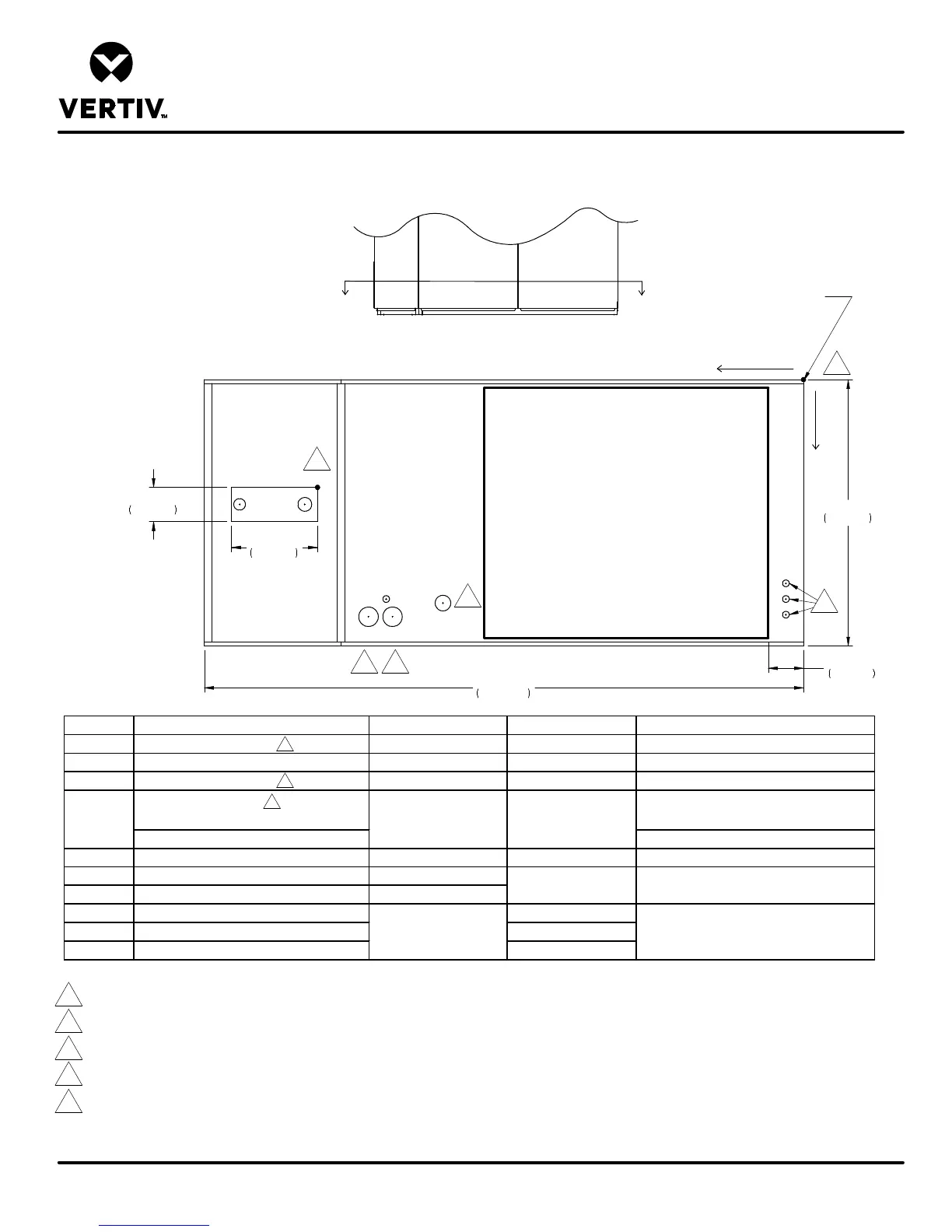
DOWNFLOW DA050
Form No.: DPN001040_REV4
PRIMARY CONNECTION LOCATIONS
LIEBERT DSE
FRONT OF UNIT
FRONT VIEW
SECTION A-A
35"
889mm
77"
1956mm
ALL DIMENSIONS FROM
REAR CORNER OF UNIT
INCLUDING PANELS
L1 G1
R
E1
E2
HUM
CD
LV1
LV2
LV3
O
X
Y
EC FAN
OUTLET
5"
127mm
15"
381mm
A
A
POINT DESCRIPTION X in. (mm) Y in. (mm) CONNECTION SIZE / OPENING
R REFRIGERANT ACCESS 59-7/8 (1521) 13-11/16 (348) 15" (381mm) X 5" (127mm)
L1 LIQUID LINE SYSTEM 1 71-11/16 (1821) 16-3/4 (425) 5/8" O.D. Cu
G1 HOT GAS DISCHARGE 1 62-9/16 (1589) 16-3/8 (416) 1-1/8" O.D. Cu
CONDENSATE DRAIN
(infrared humidifier or no humidifier)
3/4" NPT Female
W/ OPTIONAL PUMP 1/2" O.D. Cu
HUM HUMIDIFIER SUPPLY LINE 53-1/2 (1359) 29 (737) 1/4" O.D. Cu
E1 ELECTRICAL CONN. (HIGH VOLT) 55-1/2 (1410)
E2 ELECTRICAL CONN. (HIGH VOLT) 52-7/16 (1332)
LV1 ELECTRICAL CONN. (LOW VOLT) 27 (686)
LV2 ELECTRICAL CONN. (LOW VOLT) 29 (737)
LV3 ELECTRICAL CONN. (LOW VOLT) 31 (787)
CD 46 (1168)
2-1/4 (57)
31-1/4 (794)
29-1/2 (749)
2-1/2"
7/8"
4.50"
114mm
Notes:
1. Drawing not to scale. All dimensions from rear corner of unit including panels, and have a tolerance of
u
1/2" (13mm).
2. Field pitch Condensate Drain line a minimum of 1/8" (3.2 mm) per foot (305 mm). All units contain a factory installed condensate trap. Do not trap
external to the unit. Drain line may contain boiling water. Select appropriate drain system materials. The drain line must comply with all local codes.
3. When piping out of the top of the unit, install traps in the discharge lines in the bottom of the unit before running lines to the top.
4. Opening for conduit chase, E1 and E2 are openings for conduit connections to 2-1/2", 1-3/4" and 1-3/8" knockouts at electric panel.
5. See DPN003533 for alternate piping from the top of the unit.
2
3
4
1
5
4 4
5
3

Table of Contents

Other manuals for Vertiv Liebert DSE

Related product manuals