EasyManua.ls Logo

Viper AS5160 - Schéma de Câblage

Viper AS5160
84 pages
Print Icon
To Next Page IconTo Next Page
To Next Page IconTo Next Page
To Previous Page IconTo Previous Page
To Previous Page IconTo Previous Page
Loading...
MANUEL UTILISATEUR
FRANÇAIS
36
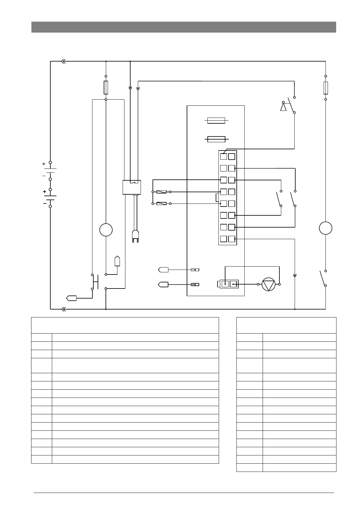
SCHÉMA DE BLAGE (UNIQUEMENT POUR LA MACHINE À DISQUE SANS
TRACTION)
COMPOSANTS
JAUGE
BAT
BATTERIES DE 24V
RD1
ROUGE/6AWG
CH
CHARGEUR DE BATTERIES
RD2
ROUGE/10AWG
EB1
PANNEAU DE COMMANDE
RD4
ROUGE/20AWG
ES1
COMMUTATEUR ÉLECTROMAGNÉTIQUE DE 24V (MOTEUR DE
LA BROSSE)
BK1
NOIRE/6AWG
ES2
RELAIS DE 24V (MOTEUR DE L'ASPIRATEUR)
BK2
NOIR/10AWG
F1
FUSIBLE DU FAIBLE CIRCUIT ÉLECTRIQUE
BK3
NOIR/12AWG
F2
DISJONCTEUR (MOTEUR DE LA BROSSE)
BK5
NOIR/20AWG
F3
FUSIBLE À RELÂCHEMENT DE LA BROSSE
BK6
NOIR/16AWG
F5
DISJONCTEUR (MOTEUR DE L'ASPIRATEUR)
RD-BK
ROUGE-NOIR/20AWG
C1
CLÉ DE CONTACT
BN1
MARRON/12AWG
M1
MOTEUR DE LA BROSSE
BN3
MARRON/20AWG
M2
MOTEUR DE L'ASPIRATEUR
BN-BK
MARRON-NOIR/20AWG
EV
ÉLECTROVANNE
BU
BLEU/20AWG
SW1
COMMUTATEUR DE CURITÉ (BROSSE)
BU-BK
BLEU-NOIR/20AWG
SW2
COMMUTATEUR DE CURITÉ (BROSSE)
YE
JAUNE/20AWG
WH
BLANC/20AWG
BAT
CH
K1
EV
M1
M2
EB1
ES1
ES2
F2
F5
RD1
RD2
RD2
BN1
BK3
BN3
RD2
BK3
BK2
BK5
BK2
BK1
NC
F1
F3
SW1
RD4
RD-BK
BK2
RD2
BN3
J1
J2
SW2
IN1
8
9
1
16
RD4
ES1
ES2
BN-BK
YE
BU-BK
BN3
BU
BN3
RD-BK
BK6
BK6
2
6
7
3
4
5
10
11
14
15
12
13
IN1
BU
BK6
IN2
J5
J4
IN2
BK6
BK5

Table of Contents

Other manuals for Viper AS5160

Related product manuals